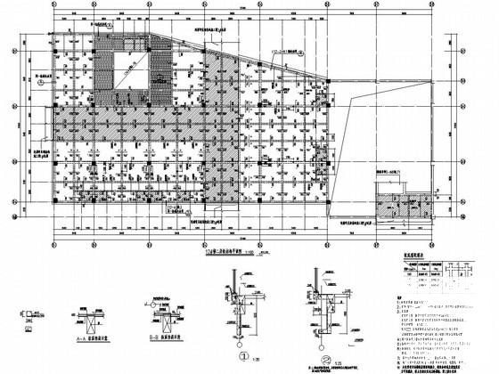
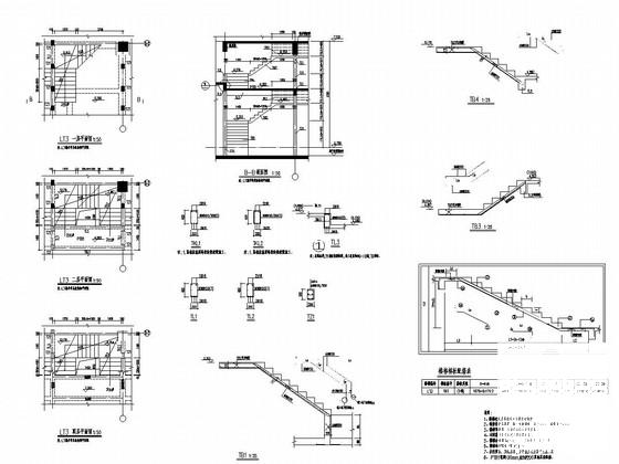
两栋地上2层现浇框架结构商业楼结构设计施工图纸
- 发布时间:2021-12-05
- 评论次数:0
- 浏览次数:0
- 文件大小:6.35 MB
- 收藏次数:0
-
文件名称:
附件-995887998750560787785.zip
现浇框架结构下载
- 两栋地上2层框架结构商业楼结构设计施工图纸
- 两栋地上2层现浇框架结构附属店面结构设计施工图纸
- 地上3层与2层现浇框架结构商业楼结构设计施工图纸
- 3层现浇框架结构商业楼结构设计施工图纸
- 两栋3层框架结构商业楼结构CAD施工图纸
- 地上2层框架结构商业楼结构设计施工图纸
- 地上3层框架结构商业楼结构设计施工图纸
- 地上4层框架结构商业楼结构设计施工图纸
- 两栋地上3层框架结构公寓楼结构设计施工图纸
- 两栋地上2层框架结构商业街结构设计施工图纸
- 两栋地上4层框架结构工业厂房结构设计施工图纸
- 两栋地上5层框架结构车间厂房结构施工图纸
- 两栋地上3层框架结构别墅结构施工图纸
- 两栋地上5层框架结构安置楼房结构CAD施工图纸
- 两栋地上2层框架结构美食街结构CAD施工图纸
- 两栋地上4层框架结构工业厂房结构CAD施工图纸
- 地上3层框架结构商业楼地上部分结构CAD施工图纸.dwg
- 地上6层框架结构商业楼结构设计施工大样图
- 地上4层框架结构商业楼结构施工图纸
- 地上2层框架结构商业楼结构施工图纸
全部评论
评论网友评论仅友表达个人看法,并不表明本站同意其观点,不得发布违反法律法规的内容!
