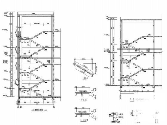
6层框架结构师范大学宿舍楼结构施工大样图
- 发布时间:2021-12-05
- 评论次数:0
- 浏览次数:0
- 文件大小:2.61 MB
- 收藏次数:0
- 
								文件名称: 附件-995888077688955987576.rar 附件-995888077688955987576.rar
								框架结构宿舍楼下载
							
						- 6层框架结构师范大学宿舍楼结构CAD施工大样图
- 7层框架结构师范大学宿舍楼结构CAD施工大样图(回字形中间有走廊)
- 地上5层框架结构宿舍楼结构施工大样图
- 4层框架结构宿舍楼结构CAD施工大样图
- 3层框架结构小学宿舍楼结构CAD施工大样图(建筑大样图)
- 大学6层框架结构宿舍楼施工大样图
- 5层框架结构员工宿舍楼全套施工大样图2017
- 大学6层框架结构宿舍楼CAD施工大样图(建筑大样图)
- 4层框架结构宿舍楼结构设计施工大样图
- 6层框架结构中心小学宿舍楼结构设计施工大样图
- 3543平米7层框架结构教师学院员工宿舍楼结构施工大样图
- 5层框架结构寄宿制学校宿舍楼结构施工大样图
- 6层框架结构男生宿舍楼结构设计施工大样图
- 3层框架结构小学宿舍楼结构设计施工大样图
- 5层框架结构宿舍楼结构设计施工大样图
- 5853平米6层框架结构女生宿舍楼结构施工大样图
- 5层框架结构宿舍楼结构CAD施工大样图(钻孔灌注桩)
- 6层框架结构师范学院宿舍楼建筑结构CAD施工大样图
- 2栋6层框架结构宿舍楼结构CAD施工大样图2019.dwg
- 5层框架结构公司宿舍楼毕业设计方案施工大样图
全部评论
						
							评论网友评论仅友表达个人看法,并不表明本站同意其观点,不得发布违反法律法规的内容!
						
						
 
	              	 
	              	 
	              	 
	              	 
	              	