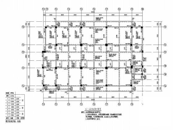
3543平米7层框架结构教师学院员工宿舍楼结构施工大样图
- 发布时间:2021-12-04
- 评论次数:0
- 浏览次数:0
- 文件大小:4.75 MB
- 收藏次数:0
-
文件名称:
附件-995887598858967898959.rar
框架结构宿舍楼下载
- 7层框架结构教师学院员工宿舍楼结构CAD施工大样图(建筑大样图)
- 5层框架结构员工宿舍楼全套施工大样图2017
- 教师宿舍楼结构CAD图纸
- 6层框架结构员工宿舍楼结构设计施工图纸
- 11层剪力墙结构高职学院教师宿舍楼建筑结构施工图纸
- 7层异形柱框架结构教师宿舍楼结构CAD施工图纸
- 6层教师宿舍楼框架结构CAD施工图纸()
- 5层酒店员工宿舍楼混凝土结构施工方案大样图
- 上4层框架结构教师宿舍楼带阁楼结构CAD图纸
- 学院教师公寓结构设计CAD图纸
- 6层框架结构师范学院宿舍楼建筑结构CAD施工大样图
- 7层员工宿舍楼给排水CAD施工大样图
- 11层框架结构机械公司员工宿舍楼结构CAD施工图纸
- 4层框架结构员工宿舍结构设计施工大样图
- 7层异形柱框架结构教师宿舍楼结构设计施工图纸
- 6层员工宿舍楼电气CAD图纸
- 4层带内庭小学教师宿舍楼建筑结构施工大样图
- 学院教师及留学生公寓结构设计CAD施工图纸
- 11层剪力墙结构教师宿舍楼建筑结构施工图纸
- 5300平11层员工宿舍楼建筑结构施工图纸
全部评论
评论网友评论仅友表达个人看法,并不表明本站同意其观点,不得发布违反法律法规的内容!
