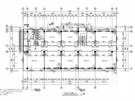
3层框架结构办公楼结构施工大样图立面图,剖面图
- 发布时间:2021-12-04
- 评论次数:0
- 浏览次数:0
- 文件大小:1.63 MB
- 收藏次数:0
-
文件名称:
附件-995888099986858577706.rar
框架结构办公楼大样图下载
- 9层框架结构办公楼结构CAD施工大样图(建筑大样图)
- 3层框架结构办公楼建筑结构施工大样图
- 4层框架结构综合办公楼结构施工大样图
- 9层框架结构办公楼结构施工大样图
- 3层框架结构法院办公楼结构施工大样图
- 3层框架结构回字形办公楼结构施工大样图
- 地上5层框架结构办公楼结构施工大样图
- 3层框架结构办公楼结构施工大样图
- 5层框架结构调度中心办公楼结构施工大样图
- 3层现浇框架结构办公楼结构施工大样图
- 地上3层框架结构办公楼结构施工大样图
- 地上4层现浇框架结构办公楼结构施工大样图
- 地上6层框架结构办公楼结构施工大样图
- 860平3层框架结构办公楼结构施工大样图
- 2层框架结构办公楼全套施工大样图2016
- 3层框架结构办公楼结构施工大样图2017
- 3层框架结构食堂_办公楼建筑施工大样图2017
- 6层框架结构综合办公楼建筑施工大样图
- 5层混凝土框架结构办公楼施工方案大样图(CAD)
- 5层办公楼框架结构施工方案大样图(CAD)
全部评论
评论网友评论仅友表达个人看法,并不表明本站同意其观点,不得发布违反法律法规的内容!
