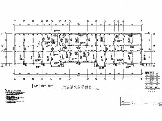
6层框架结构办公楼结构施工大样图,平面布置图
- 发布时间:2021-12-04
- 评论次数:0
- 浏览次数:0
- 文件大小:1.59 MB
- 收藏次数:0
- 
								文件名称: 附件-995887986785799587007.zip 附件-995887986785799587007.zip
								办公楼结构大样图下载
							
						- 办公楼建筑结构CAD大样图
- 钢结构办公楼全套CAD大样图
- 框架办公楼结构CAD大样图
- 3层办公楼结构CAD大样图
- 钢结构公寓办公楼详大样图
- 9层框架结构办公楼结构CAD施工大样图(建筑大样图)
- 3层框架结构办公楼建筑结构施工大样图
- 4层框架结构综合办公楼结构施工大样图
- 9层框架结构办公楼结构施工大样图
- 3层框架结构法院办公楼结构施工大样图
- 3层框架结构回字形办公楼结构施工大样图
- 地上5层框架结构办公楼结构施工大样图
- 3层框架结构办公楼结构施工大样图
- 5层框架结构调度中心办公楼结构施工大样图
- 地上21层框筒结构办公楼结构施工大样图
- 25层框架剪力墙结构办公楼结构施工大样图
- 46层框架核心筒结构办公楼结构施工大样图
- 3层现浇框架结构办公楼结构施工大样图
- 地上3层框架结构办公楼结构施工大样图
- 地上4层现浇框架结构办公楼结构施工大样图
全部评论
						
							评论网友评论仅友表达个人看法,并不表明本站同意其观点,不得发布违反法律法规的内容!
						
						
 
	              	 
	              	 
	              	 
	              	 
	              	