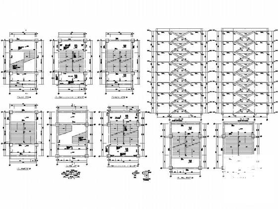
4层框架结构国际广场结构设计施工图纸
- 发布时间:2021-12-04
- 评论次数:0
- 浏览次数:0
- 文件大小:3.14 MB
- 收藏次数:0
-
文件名称:
附件-995888999076880957779.rar
广场设计图纸下载
- “红星国际广场”项目
- 远雄国际广场结构设计.pdf
- 框架结构国际广场地下车库结构设计CAD施工图纸
- 4层框架结构国际广场结构CAD施工图纸
- 国际广场地下车库结构设计CAD施工图纸
- 国际广场夜景照明电气CAD施工图纸
- 国际大酒店广场CAD施工图纸
- 国际广场小区住宅楼群建筑施工CAD图纸
- 海控国际广场续建超高层结构设计.pdf
- 海航国际广场A座主楼超高层结构设计.pdf
- 国内保利国际广场主塔楼结构设计.pdf
- 阳光国际广场1号楼结构设计.pdf
- 世茂国际广场主楼结构设计.pdf
- 42层超高层国际广场平面CAD图纸
- 商业绿化源泉国际广场景观方案设计
- 4层框架结构美食广场框架结构设计施工图纸
- 44787平米3层国际广场空调通风施工图纸
- 23层越阳国际广场酒店建筑施工图纸
- 58层国际广场办公楼电气施工图纸
- 广场国际学校暖通施工图纸cad平面图
全部评论
评论网友评论仅友表达个人看法,并不表明本站同意其观点,不得发布违反法律法规的内容!
