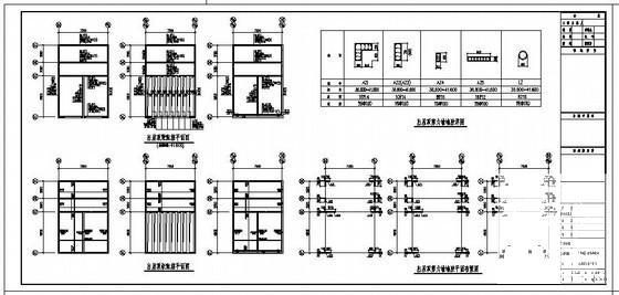
11层框架结构商贸广场结构设计施工图纸
- 发布时间:2021-12-01
- 评论次数:0
- 浏览次数:0
- 文件大小:1.51 MB
- 收藏次数:0
-
文件名称:
附件-995877055599500685868.rar
广场设计图纸下载
- 11层商贸广场结构设计CAD施工图纸
- 花园商贸广场的混凝土超长结构设计.pdf
- 地上3层框架结构商贸楼结构设计施工图纸
- 框架结构商贸楼结构设计CAD施工大样图.dwg
- 20层商贸广场综合楼暖通CAD施工图纸(知名设计院)
- 4层商贸广场改造为五星酒店结构设计图纸(节点大样图)
- 4层框架结构美食广场框架结构设计施工图纸
- 郊县商贸广场办公楼vrv空调设计图纸.dwg
- 商贸楼结构设计CAD大样图
- 5层框架结构商贸实训中心结构施工图纸
- 地上3层框架结构商贸楼结构CAD施工图纸
- 农产品商贸城框架结构CAD施工图纸
- 商贸楼综合布线施工图纸
- 3层框架结构商贸楼结构施工大样图2016
- 4层框架结构国际广场结构设计施工图纸
- 4层美食广场框架结构设计CAD施工图纸
- 广场商住楼结构设计方案CAD图纸(框架结构)
- 商贸城室外管道图纸
- 商贸城钢结构厂房图纸.
- 白沙广场高层异形柱框架结构设计.pdf
全部评论
评论网友评论仅友表达个人看法,并不表明本站同意其观点,不得发布违反法律法规的内容!
