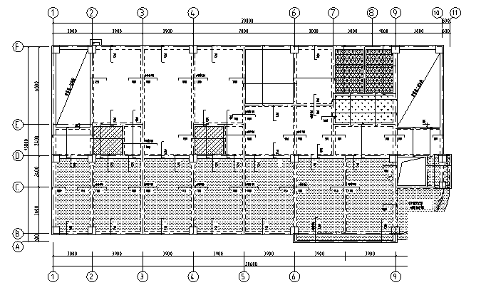
1673.98平方米地上4层框架结构敬老院结构施工图纸
- 发布时间:2021-12-04
- 评论次数:0
- 浏览次数:0
- 文件大小:1.14 MB
- 收藏次数:0
-
文件名称:
附件-995887979898978575556.zip
框架结构敬老院下载
- 地上3层框架结构敬老院结构CAD施工大样图
- 六栋地上4层框架结构敬老院结构设计施工图纸
- 六栋地上4层框架结构敬老院结构CAD施工图纸
- 地上3层框架结构敬老院结构设计施工大样图
- 敬老院框架结构设计CAD施工图纸
- 地上单层框架结构餐厅结构施工图纸
- 地上单层框架结构会所结构施工图纸
- 城市框架结构2层敬老院建筑方案设计
- 敬老院建筑结构CAD施工图纸
- 4层框架结构综合活动中心及敬老院结构施工图纸
- 敬老院暖通施工图纸
- 敬老院框架结构设计CAD施工图纸(独立柱基础,6度抗震)
- 砖混敬老院结构大样CAD图纸
- 砖混敬老院结构大样节点详图
- 地上5层框架结构商业办公楼地上部分结构施工图纸
- 地上六1层框架结构住宅楼结构CAD施工图纸(仅地上部分)
- 地上3层框架结构商业楼地上部分结构CAD施工图纸.dwg
- 海4层敬老院空调施工图纸
- 3层敬老院大楼电气施工图纸
- 砌体结构敬老院办公楼、公寓、餐厅结构CAD施工图纸
全部评论
评论网友评论仅友表达个人看法,并不表明本站同意其观点,不得发布违反法律法规的内容!
