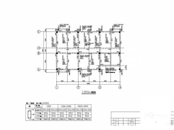
地上3层框架结构食堂结构施工图纸
- 发布时间:2021-12-03
- 评论次数:0
- 浏览次数:0
- 文件大小:1.78 MB
- 收藏次数:0
-
文件名称:
附件-995888997589587969558.rar
框架结构食堂下载
- 地上3层框架结构教工食堂结构施工图纸
- 地上2层框架结构食堂结构施工图纸
- 地上4层框架结构食堂结构施工图纸
- 地上3层框架结构食堂结构CAD施工图纸
- 地上3层框架结构学校食堂结构CAD施工图纸
- 地上3层现浇框架结构食堂结构施工大样图
- 地上4层框架结构食堂结构CAD施工大样图
- 1286平米地上2层框架结构食堂建筑施工图纸
- 3层框架结构食堂结构施工图纸
- 4层框架结构食堂结构施工图纸
- 单层框架结构食堂结构CAD施工图纸
- 食堂浴室框架结构CAD施工图纸
- 食堂框架结构CAD施工图纸
- 食堂浴室框架结构CAD施工图纸.dwg
- 国内8978.平米地上4层食堂采暖图纸
- 地上单层框架结构餐厅结构施工图纸
- 地上单层框架结构会所结构施工图纸
- 4层框架结构食堂初步设计
- 3层框架结构食堂结构施工图结构设计说明
- 公司3层框架结构食堂结构施工图纸
全部评论
评论网友评论仅友表达个人看法,并不表明本站同意其观点,不得发布违反法律法规的内容!
