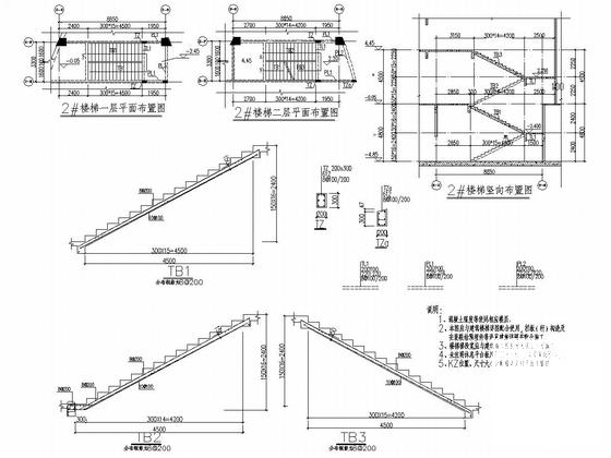
两层框架结构博物馆配套用房结构施工图纸
- 发布时间:2021-12-04
- 评论次数:0
- 浏览次数:0
- 文件大小:2.32 MB
- 收藏次数:0
- 
								文件名称: 附件-995888578776987868088.rar 附件-995888578776987868088.rar
								框架结构博物馆下载
							
						- 两层框架结构博物馆配套用房结构CAD施工图纸(造型奇特)
- 两层框架结构经济适用房配套公建结构施工图纸
- 地上2层框架结构配套用房结构设计施工图纸
- 单层框架结构球场配套用房结施CAD施工图纸2020
- 两层框架结构交警大队业务技术用房结构施工图纸
- 两层框架结构公园管理用房结构CAD施工图纸
- 两层社区服务用房框架结构CAD施工图纸
- 地下1层框架结构停车库及配套设备用房结构施工图纸
- 3层框架结构廉租房生活配套设施用房结构设计施工图纸
- 2栋框架结构住宅配套用房结构CAD图纸(柱平法施工图)
- 3层框架结构廉租房生活配套设施用房结构CAD施工图纸
- 两层框架社区用房结构施工图纸
- 两层框架结构居住小区配套公建结构设计施工图纸
- 两层框架结构居住小区配套公建结构CAD施工图纸
- 钢筋混凝土框架结构小学配套用房结构设计说明
- 钢筋混凝土框架结构小学配套用房结构设计说明.dwg
- 两层框架结构交警大队业务技术用房结构CAD施工图纸
- 两层框架结构交警大队业务技术用房结构CAD施工图纸
- 两层框架结构社区服务用房结构设计CAD施工图纸(独立基础)
- 两层框架结构观光旅游园办公辅助用房结构CAD施工图纸
全部评论
						
							评论网友评论仅友表达个人看法,并不表明本站同意其观点,不得发布违反法律法规的内容!
						
						
 
	              	 
	              	 
	              	 
	              	