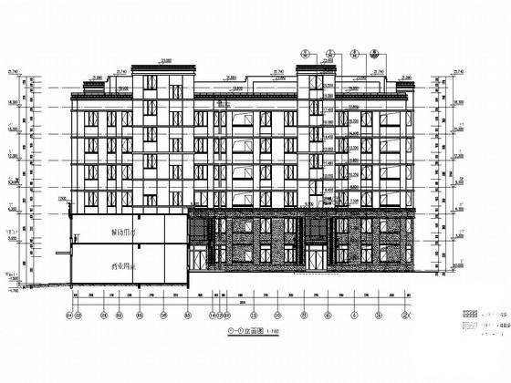
6层框架结构商住楼结构施工图纸
- 发布时间:2021-12-04
- 评论次数:0
- 浏览次数:0
- 文件大小:6.02 MB
- 收藏次数:0
- 
								文件名称: 附件-995888075987870580995.rar 附件-995888075987870580995.rar
								框架结构商住楼下载
							
						- 6层框架结构商住楼结构设计施工图纸
- 地上9层框架结构商住楼结构施工图纸
- 3700平米6层框架结构商住楼结构施工图纸
- 地上6层异形柱框架结构商住楼结构施工图纸
- 地上6层框架结构商住楼结构施工图纸
- 6层商住楼建筑结构CAD施工图纸(框架结构)
- 16层框架结构商住楼建筑结构CAD施工图纸
- 错层框架结构商住楼结构CAD施工图纸
- 3层框架结构小城镇商住楼结构CAD施工图纸
- 4层框架结构商住楼结构CAD施工图纸
- 6层筏板基础框架结构商住楼结构CAD施工图纸
- 5层框架结构商住楼结构CAD施工图纸(筏形基础)
- 6层框架结构商住楼结构CAD施工图纸(独立基础)
- 3700平6层框架结构商住楼结构CAD施工图纸
- 6层框架结构商住楼结构CAD施工图纸
- 6层框架结构商住楼结构CAD施工图纸
- 框架结构商住楼结构CAD施工图纸(6层桩基础)
- 框架结构商住楼结构建筑施工CAD图(成套图纸).dwg
- 5层框架结构商住楼结构施工方案大样图(CAD)
- 9547平米12层框架结构商住楼电气施工图纸
全部评论
						
							评论网友评论仅友表达个人看法,并不表明本站同意其观点,不得发布违反法律法规的内容!
						
						
 
	              	 
	              	 
	              	 
	              	 
	              	