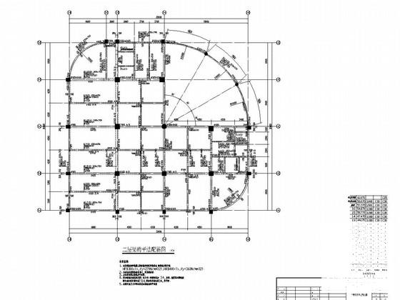
地上16层框架结构商务楼结构施工图纸
- 发布时间:2021-12-04
- 评论次数:0
- 浏览次数:0
- 文件大小:1.17 MB
- 收藏次数:0
-
文件名称:
附件-995887756055550809699.zip
相关下载
- 地上24层框架核心筒结构商务楼结构CAD施工图纸
- 4层框架结构商务楼建筑结构CAD施工图纸
- 7层框架结构商务楼建筑及结构CAD施工图纸
- 7层框架结构商务楼结构施工图纸(静压PHC管桩)
- 4层框架结构商务楼建筑结构CAD施工图纸
- 框架结构商务楼建筑及结构CAD施工图纸
- 地上24层框架核心筒结构商务楼结构施工大样图
- 框架结构商务楼建筑结构CAD图纸
- 20000平米地上12层商务楼空调图纸
- 地上单层框架结构餐厅结构施工图纸
- 地上单层框架结构会所结构施工图纸
- 高层商务楼结构CAD施工图纸
- 商务楼结构施工图纸.dwg
- 商务楼CAD图纸
- 地上5层框架结构商业办公楼地上部分结构施工图纸
- 地上六1层框架结构住宅楼结构CAD施工图纸(仅地上部分)
- 地上3层框架结构商业楼地上部分结构CAD施工图纸.dwg
- 商务楼给排水消防图纸
- 商务楼空调平面CAD图纸
- 地上4层框架结构服务中心结构改造施工图纸
全部评论
评论网友评论仅友表达个人看法,并不表明本站同意其观点,不得发布违反法律法规的内容!
