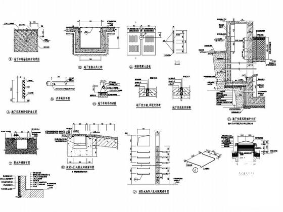
303位大型框剪结构地下停车库建筑结构施工图纸
- 发布时间:2021-12-03
- 评论次数:0
- 浏览次数:0
- 文件大小:2.45 MB
- 收藏次数:0
- 
								文件名称: 附件-995887760697755697668.rar 附件-995887760697755697668.rar
								大型地下车库施工下载
							
						- 442个车位地下1层框剪结构地下室建筑结构施工大样图
- 大型地下停车库CAD施工图纸(无梁楼盖)
- 11层框剪结构大型医院结构施工图纸
- 框剪结构高层大型裙楼结构CAD施工图纸(抗震设防类别)
- 框剪结构大型医院结构CAD施工图纸(11层桩基础)
- 6层框剪结构商务楼建筑结构施工图纸
- 框剪结构5层医院太平间建筑结构CAD施工图纸
- 26层城市酒店框剪结构建筑结构CAD施工图纸
- 29层框剪结构住宅楼建筑结构CAD施工图纸
- 3层框剪结构少年宫建筑结构CAD施工图纸
- 4层框剪结构办公楼建筑结构CAD施工图纸
- 12层地下2层框剪结构大厦结构设计施工图纸
- 框剪结构高层地下室结构设计施工图纸
- 框剪结构1层地下室、车库结构施工图纸
- 18层框剪结构商住楼结构施工图纸(地下1层)
- 33层框剪结构商住楼结构施工图纸(地下1层)
- 地下1层框剪结构车库结构设计施工图纸
- 单层框剪结构地下室结构CAD施工图纸(大底盘)
- 高层框剪结构住宅楼地下车库工程结构CAD施工图纸
- 框剪结构地下室结构设计CAD施工图纸
全部评论
						
							评论网友评论仅友表达个人看法,并不表明本站同意其观点,不得发布违反法律法规的内容!
						
						
 
	              	 
	              	 
	              	 
	              	 
	              	