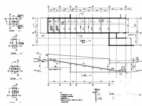
地下1层框剪结构车库结构设计施工图纸
- 发布时间:2021-12-05
- 评论次数:0
- 浏览次数:0
- 文件大小:1.72 MB
- 收藏次数:0
-
文件名称:
附件-995887958788765958955.rar
地下车库结构设计下载
- 两层框剪地下车库结构设计施工图纸
- 框剪地下车库结构设计方案CAD施工图纸
- 高层框剪地下车库结构设计方案CAD施工图纸
- 16层框剪地下室车库结构设计CAD施工图纸
- 地下4层框剪结构车库结构设计说明2015
- 高层框剪地下车库结构设计方案CAD图纸
- 框剪结构1层地下室、车库结构施工图纸
- 高层框剪结构住宅楼地下车库工程结构CAD施工图纸
- 地下1层框剪结构车库结构CAD施工图纸
- 地下1层框剪结构车库结构CAD施工图纸
- 2层地下车库框剪结构住宅楼结构CAD施工图纸
- 22层框剪结构下部地下车库结构设计方案CAD施工图纸
- 30层带地下车库框剪住宅楼结构CAD施工图纸
- 30层带地下车库框剪住宅结构CAD施工图纸
- 22层带地下车库住宅框剪结构CAD施工图纸
- 单层框剪结构地下车库建筑及结构图纸(15000平)
- 框剪结构地下室车库结构设计图纸(平面布置图)
- 负一层框剪结构车库结构设计施工图纸
- 12层地下2层框剪结构大厦结构设计施工图纸
- 框剪结构高层地下室结构设计施工图纸
全部评论
评论网友评论仅友表达个人看法,并不表明本站同意其观点,不得发布违反法律法规的内容!
