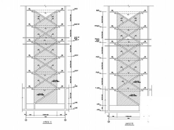
33层框剪结构商住楼结构施工图纸(地下1层)
- 发布时间:2021-12-04
- 评论次数:0
- 浏览次数:0
- 文件大小:7.42 MB
- 收藏次数:0
-
文件名称:
附件-995888978887979065770.rar
框剪结构施工图纸下载
- 18层框剪结构商住楼结构施工图纸(地下1层)
- 18层框剪结构商住楼结构CAD施工图纸(地下1层)
- 33层框剪结构商住楼结构CAD施工图纸(地下1层)
- 20层框剪结构商住楼地下室及基础CAD图纸
- 框剪结构商住楼设计说明
- 地上18层框剪结构商住楼结构CAD施工图纸(地下1层)
- 旧城改造地上15层地下1层框剪商住楼结构CAD施工图纸
- 28层框剪商住楼结构CAD施工图纸(桩基础)(地下室顶板)
- 地上18层框剪结构商住楼结构施工图纸
- 高层框剪结构商住楼结构设计施工图纸
- 27层框剪结构商住楼结构CAD施工图纸(7度抗震)
- 18层框剪结构商住楼结构CAD施工图纸(6度抗震)
- 28层框剪结构商住楼结构CAD施工图纸(桩基础)
- 12层框剪结构商住楼结构CAD施工图纸
- 11层框剪结构商住楼结构施工方案图纸(CAD、36张)
- 27层框剪结构商住楼结构CAD施工图纸
- 6层框剪结构商住楼结构CAD施工图纸
- 2层框剪结构商住楼结构CAD施工图纸
- 28层框剪结构商住楼结构CAD施工图纸
- 两层框剪结构商住楼结构CAD施工图纸
全部评论
评论网友评论仅友表达个人看法,并不表明本站同意其观点,不得发布违反法律法规的内容!
