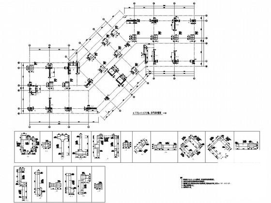
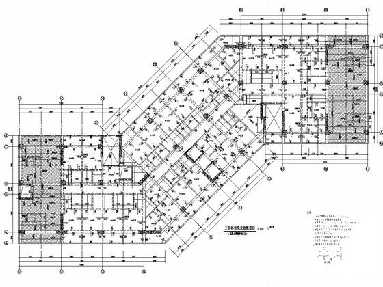
16层抗震墙结构住宅楼结构施工图纸
- 发布时间:2021-12-03
- 评论次数:0
- 浏览次数:0
- 文件大小:9.23 MB
- 收藏次数:0
-
文件名称:
附件-995887975658978595708.zip
抗震墙结构下载
- 32层抗震墙结构住宅楼结构施工图纸
- 14层框架抗震墙结构高层住宅楼结构施工图纸
- 地上14层框架抗震墙结构住宅楼结构施工图纸
- 31层抗震墙结构住宅楼结构施工图纸
- 两栋11层框架抗震墙结构住宅楼结构施工图纸
- 地上32层抗震墙结构住宅楼结构施工图纸
- 14层框架抗震墙结构住宅楼结构施工图纸
- 地上8层混凝土抗震墙结构住宅楼结构施工图纸
- 两栋31层抗震墙结构住宅楼结构施工图纸
- 32层抗震墙结构高层住宅楼结构施工图纸
- 18层剪力墙结构住宅楼结构施工图纸(7度抗震)
- 30层剪力墙结构住宅楼结构施工图纸(7度抗震)
- 两栋17层抗震墙结构住宅楼结构施工图纸
- 地上34层抗震剪力墙结构住宅楼结构施工图纸
- 14层框架抗震墙结构高层住宅楼结构CAD施工图纸
- 地上61层混凝土抗震墙结构住宅楼结构CAD施工图纸
- 地上32层抗震墙结构高层住宅楼结构CAD施工图纸
- 30层抗震墙结构住宅楼结构CAD施工图纸
- 32层抗震墙结构住宅楼结构CAD施工图纸
- 30层抗震墙结构住宅楼结构CAD施工图纸
全部评论
评论网友评论仅友表达个人看法,并不表明本站同意其观点,不得发布违反法律法规的内容!
