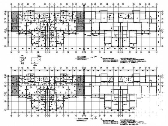
两栋17层抗震墙结构住宅楼结构施工图纸
- 发布时间:2021-12-04
- 评论次数:0
- 浏览次数:0
- 文件大小:5.75 MB
- 收藏次数:0
-
文件名称:
附件-995887606959870656676.zip
抗震墙结构下载
- 两栋11层框架抗震墙结构住宅楼结构施工图纸
- 两栋31层抗震墙结构住宅楼结构施工图纸
- 两栋17层抗震墙结构住宅楼结构CAD施工方案图纸
- 两栋18层剪力墙结构住宅楼结构施工图纸
- 两栋7层剪力墙结构住宅楼结构施工图纸
- 两栋17层剪力墙结构住宅楼结构施工图纸
- 两栋8层剪力墙结构住宅楼结构施工图纸
- 两栋剪力墙结构多层住宅楼结构CAD施工图纸
- 两栋26层剪力墙结构住宅楼地上部分结构施工图纸
- 两栋地上18层剪力墙结构住宅楼结构施工图纸
- 两栋32层框支剪力墙结构住宅楼结构施工图纸
- 两栋地上17层剪力墙结构住宅楼结构施工图纸
- 两栋32层框支剪力墙结构住宅楼结构CAD施工图纸
- 两栋17层剪力墙结构住宅楼结构CAD施工方案图纸
- 两栋61层剪力墙结构住宅楼结构CAD施工方案图纸
- 两栋地上17层剪力墙结构住宅楼结构CAD施工图纸
- 两栋地上18层剪力墙结构住宅楼结构CAD施工图纸
- 两栋地上32层框支剪力墙结构住宅楼结构CAD施工图纸
- 两栋8层剪力墙结构住宅楼结构CAD施工图纸(PKPM计算书)
- 两栋18层剪力墙结构高层住宅楼结构CAD施工图纸
全部评论
评论网友评论仅友表达个人看法,并不表明本站同意其观点,不得发布违反法律法规的内容!
