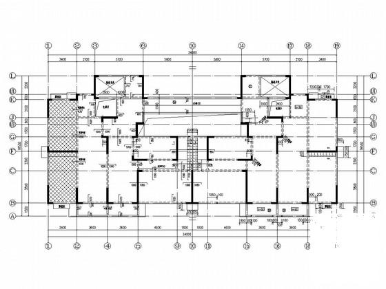
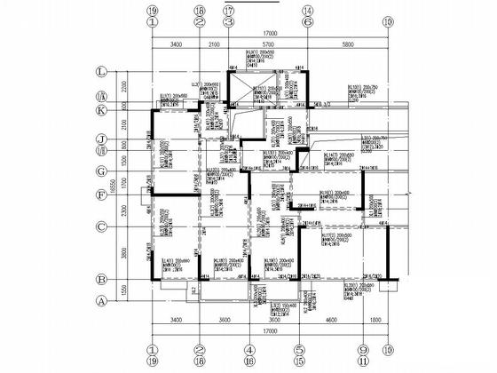
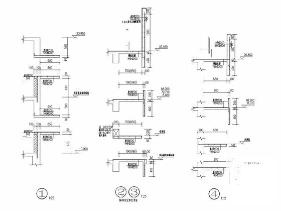
34层剪力墙结构高层住宅楼结构施工大样图模板图
- 发布时间:2021-12-03
- 评论次数:0
- 浏览次数:0
- 文件大小:1.35 MB
- 收藏次数:0
- 
								文件名称: 附件-995887955767885050789.zip 附件-995887955767885050789.zip
								结构模板图下载
							
						- 28层剪力墙结构住宅楼结构施工图模板图
- 框架结构车库结构设计施工图模板图
- 国内大剧院车库及附属工程模板施工方案(全钢模板木模板玻璃钢模板)
- 造型花坛大样图纸花盘模板图
- 弱电系统图设计模板(35页CAD图纸)
- 模板厂模板加工节点详图纸(版)
- 柱模板示意图纸(木模板)
- 柱模板示意图纸(钢模板)
- 内墙模板支撑施工示意图纸(钢模板)
- 地铁车站主体结构高大模板施工方案,平面布置图
- 模板设计CAD图纸
- 拓扑CAD图纸模板
- 隧道模板CAD图纸
- 超高层公寓大模板施工方案(钢模板木模板大型国企单位编制)
- 轻型挂篮模板系统图纸14张构造图,底蓝平面图
- 大桥大体积墩身模板cad设计图纸,断面图和总装图
- 设计图纸专用模板.
- 电气设计模板.dwg
- 钢模板设计图纸.
- 混凝土结构模板效果图纸(三维)
全部评论
						
							评论网友评论仅友表达个人看法,并不表明本站同意其观点,不得发布违反法律法规的内容!
						
						
 
	              	 
	              	 
	              	 
	              	 
	              	