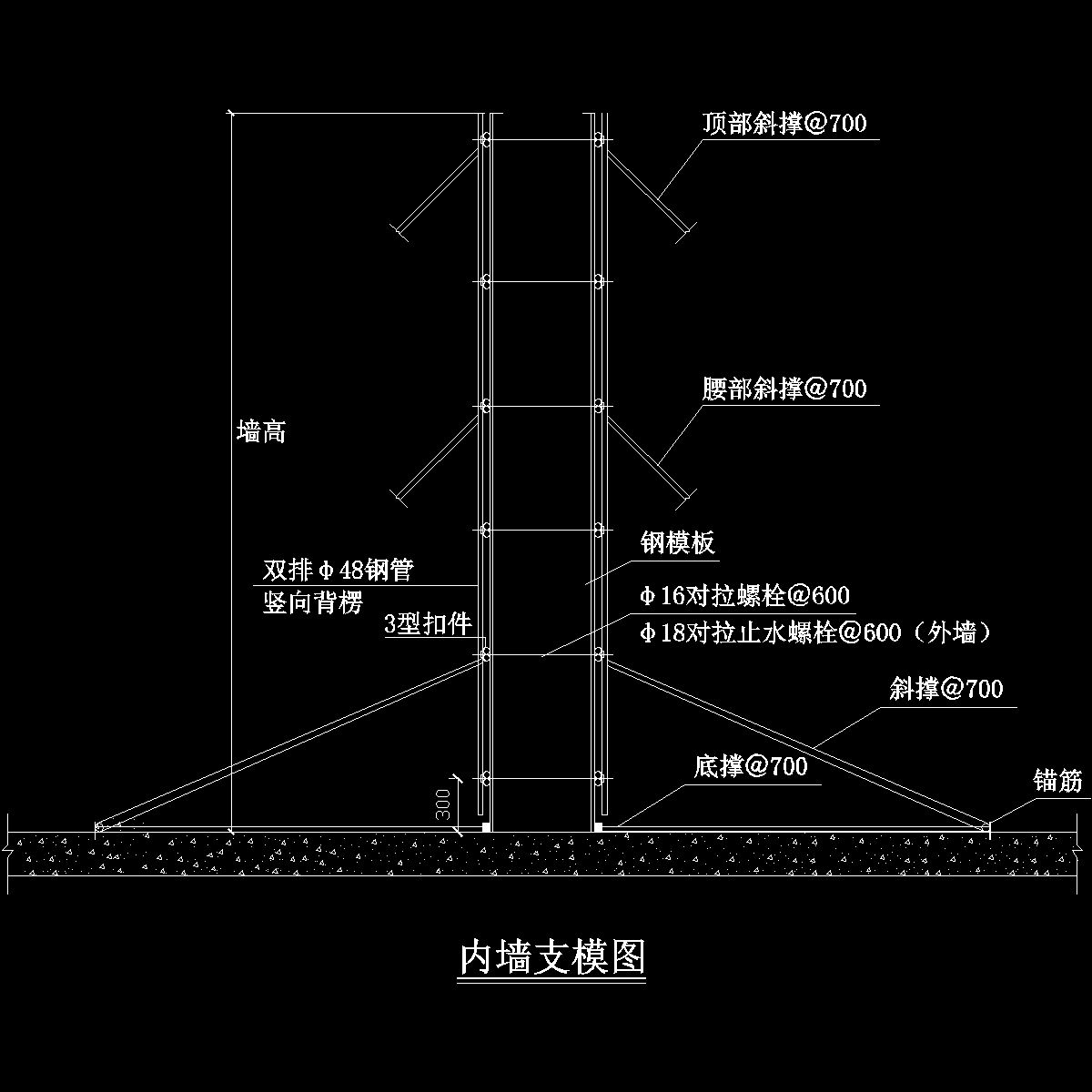
内墙模板支撑施工示意图纸(钢模板)
- 发布时间:2024-01-02
- 评论次数:0
- 浏览次数:0
- 文件大小:0.05 MB
- 收藏次数:0
- 
								文件名称: 附件-996000897855970896.rar 附件-996000897855970896.rar
								相关下载
							
						- 柱模板示意图纸(钢模板)
- 内墙模板支设示意图纸cad
- 墙钢模板立面组装示意图纸cad
- 3.4m墙体模板竖向组拼示意图纸(钢模板)
- 国内大剧院车库及附属工程模板施工方案(全钢模板木模板玻璃钢模板)
- 钢模板设计图纸.
- 后浇带模板支撑示意节点构造详图纸
- 水池模板及支撑示意图纸cad
- 墙体模板及支撑示意图纸cad
- 外墙组合钢模板爬架处支设示意图纸cad
- 外挂架组合钢模板支设示意图纸cad
- T梁钢模板设计CAD图纸
- 内墙模板支设节点构造CAD详图纸
- 梁模板底板支撑施工示意图纸(多层板碗扣架)
- 梁模板底板支撑施工示意图纸(多层板碗扣架)
- 核心筒墙体钢模板的设计与施工
- 单层地窖结构钢模板初设图纸
- 大桥30米T梁钢模板设计CAD图纸
- 盖梁钢模板制作设计CAD图纸
- 50米T梁钢模板设计CAD图纸
全部评论
						
							评论网友评论仅友表达个人看法,并不表明本站同意其观点,不得发布违反法律法规的内容!
						
						
