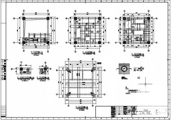
原料准备系统转运站结构设计施工图纸
- 发布时间:2021-12-02
- 评论次数:0
- 浏览次数:0
- 文件大小:0.3 MB
- 收藏次数:0
- 
								文件名称: 附件-995878798987568088876.rar 附件-995878798987568088876.rar
								相关下载
							
						- 生产准备厂房结构CAD图纸
- 原料配料站结构设计方案图纸
- 原料配料站结构设计施工图纸(3张施工图纸)
- 带地下结构转运站结构设计CAD施工图纸
- 钢铁公司转运站结构设计CAD施工图纸
- 水泥公司原料调配站及输送结构设计施工图纸
- 单层化学公司原料库房结构设计施工图纸
- 水泥公司原料调配站及输送结构设计CAD施工图纸
- 公司医药原料药车间暖通系统CAD图纸
- 炼铁工程转运站结构施工图纸.
- 带地下结构转运站结构设计CAD图纸
- 钢结构原料仓库简易棚CAD施工图纸
- 钢结构原料堆棚CAD施工图纸
- 油料原料仓库电气CAD施工图纸
- 底部框架屋顶门式刚架结构原料仓库结构设计CAD图纸
- 矿井选煤厂转载点到准备车间走廊采暖CAD施工图纸.dwg
- 浅谈原料药车间结构设计(工艺流程).pdf
- 原料场干煤棚网壳结构设计.pdf
- 钢厂混线机械设备安装施工方案(准备)
- 中学垃圾转运站给排水施工图纸cad平面图及系统图
全部评论
						
							评论网友评论仅友表达个人看法,并不表明本站同意其观点,不得发布违反法律法规的内容!
						
						
 
	              	 
	              	 
	              	