细格栅及旋流沉砂池全套施工大样图2016
- 发布时间:2021-12-09
- 评论次数:0
- 浏览次数:0
- 文件大小:1.69 MB
- 收藏次数:0
- 
								文件名称: 附件-996075898998997570.zip 附件-996075898998997570.zip
								细格栅及旋流沉砂池下载
							
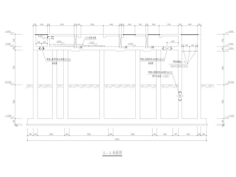
						- 细格栅及旋流沉砂池结构设计施工图纸
- 细格栅及旋流沉砂池结构施工图纸
- 细格栅及旋流沉砂池结构设计CAD施工图纸
- 旋流沉砂池CAD图纸
- 污水处理厂细格栅及旋流沉砂池结构施工图纸
- 污水处理厂细格栅及旋流沉砂池CAD施工图纸
- 污水处理厂细格栅及旋流沉砂池结构CAD施工图纸
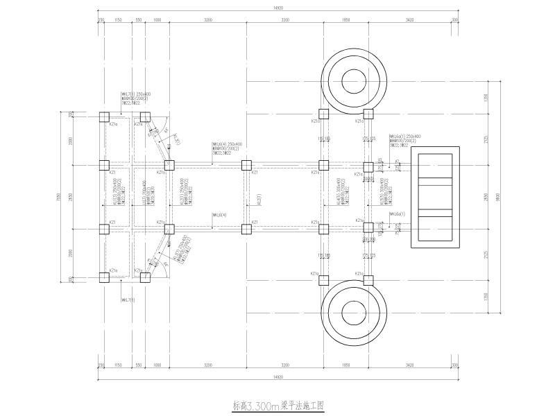
- 污水处理厂细格栅及旋流沉砂池CAD施工图纸(梁配筋图)
- 污水厂细格栅间及涡流沉砂池施工图纸
- 一套细格栅及Pista沉砂池工艺设计CAD图纸
- 细格栅及Pista沉砂池工艺设计CAD图纸
- 污水处理厂施工组织设计(旋流沉砂池)
- 细格栅曝气沉砂池工艺CAD施工方案图纸
- 污水处理厂旋流沉砂池及中水池工艺及结构施工图纸
- 细格栅沉沙池构造CAD详图纸
- 污水处理厂电气设计CAD施工图纸(旋流沉砂池)
- 污水处理厂旋流沉砂池及中水池工艺及结构CAD施工方案图纸
- 2层污水处理厂细格栅间及曝气沉砂池建筑、结构设计施工大样图
- 2层污水处理厂细格栅间及曝气沉砂池建筑、结构设计方案CAD施工图纸
- SBR、沉砂池工艺CAD图纸
全部评论
						
							评论网友评论仅友表达个人看法,并不表明本站同意其观点,不得发布违反法律法规的内容!
						
						
 
	              	 
	              	 
	              	 
	              	 
	              	