宾馆扩建加固设计施工图纸(钢结构,共5张)

  • 建筑类别:宾馆
  • 建筑高度类型:多层建筑
  • 图纸设计深度:施工图
  • 民用建筑设计使用年限:50年
  • 建筑设计结构形式:砌体结构,钢结构
  • 钢结构:门式刚架,轻钢结构
  • 结构安全等级:二级
  • 抗震设防烈度:6度抗震
  • 参考图纸:5张
  • 设计年代:近代

附件详情

宿州某宾馆扩建加固图
该资料为:宿州某宾馆扩建加固图
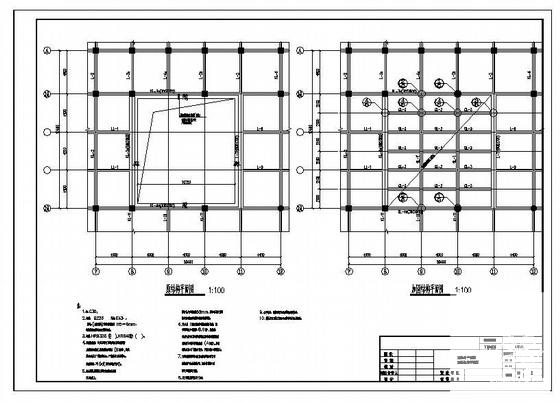
主体结构为钢结构封补洞口,梁为钢梁,楼板为压型钢板组合楼面。
抗震设防烈度为6度
该资料包含:
结构设计说明 、原结构平面图、加固结构平面图、GL-1 GL-1’GL-2 GL-3、梁 节点详图 、压型钢板组合楼板详图共5张图纸。


以下是附件的其中一部分截图,共4张,您也可以 搜索 更多您想要的资源
  • 结构加固设计施工图 - 1
    结构加固设计施工图 - 1
  • 结构加固设计施工图 - 2
    结构加固设计施工图 - 2
  • 结构加固设计施工图 - 3
    结构加固设计施工图 - 3
  • 结构加固设计施工图 - 4
    结构加固设计施工图 - 4
以上是部分截图,请下载附件后查看完整高清内容
网站首页  | 
本站所有内容均由网友自主分享,仅供学习和参考,如有侵权内容或者违法行为,请及时联系站长删除。