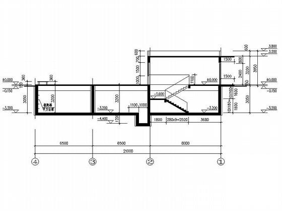
地区消防水池建筑施工CAD图纸
- 发布时间:2023-02-02
- 评论次数:0
- 浏览次数:0
- 文件大小:0.11 MB
- 收藏次数:0
- 
								文件名称: 附件-995887555050887596090.rar 附件-995887555050887596090.rar
								相关下载
							
						- 江苏地区消防水池建筑施工图纸_平面图_立面图_cad
- 消防水池施工全CAD图纸2019(建筑,结构)
- 高层建筑消防水池的设计探讨
- 消防水池侧壁计算
- 消防水池结构大样图纸
- 下消防水池结构CAD图纸
- 室外消防水池CAD图纸
- 消防水池结构CAD图纸
- 消防水池节点详图纸cad
- 消防水池防水构造大样
- 消防水池、泵池结构施工图纸
- 中学消防水池结构施工图纸
- 消防水池结构设计施工图纸
- 消防水池结构施工方案图纸2020
- 消防水池结构CAD施工方案图纸()
- 消防水池结构CAD施工方案图纸
- 中学消防水池结构CAD施工图纸
- 地下消防水池结构CAD施工图纸
- 消防水池、泵池结构CAD施工图纸
- 下消防水池结构CAD施工图纸
全部评论
						
							评论网友评论仅友表达个人看法,并不表明本站同意其观点,不得发布违反法律法规的内容!
						
						
 
	              	 
	              	 
	              	