admin
|
退出
|
登录
|
注册
|
0
积分
|
赚取积分
|
VIP领取积分
|
帮助中心
|
首页
【知石网】是一个专业资料分享学习平台,本站提供大量施工技术文档和设计下载。
首页
施工图纸
施工方案
施工组织
施工交底
合同表格
建筑结构
节点详图
毕业设计
平面图纸
景观设计
电气知识
环保知识
您当前位置:
首页
»
其他文档
»
其他资料
»
消防水池节点详图纸cad
消防水池节点详图纸cad
资料简介
赚取积分
搜索更多资源
附件详情
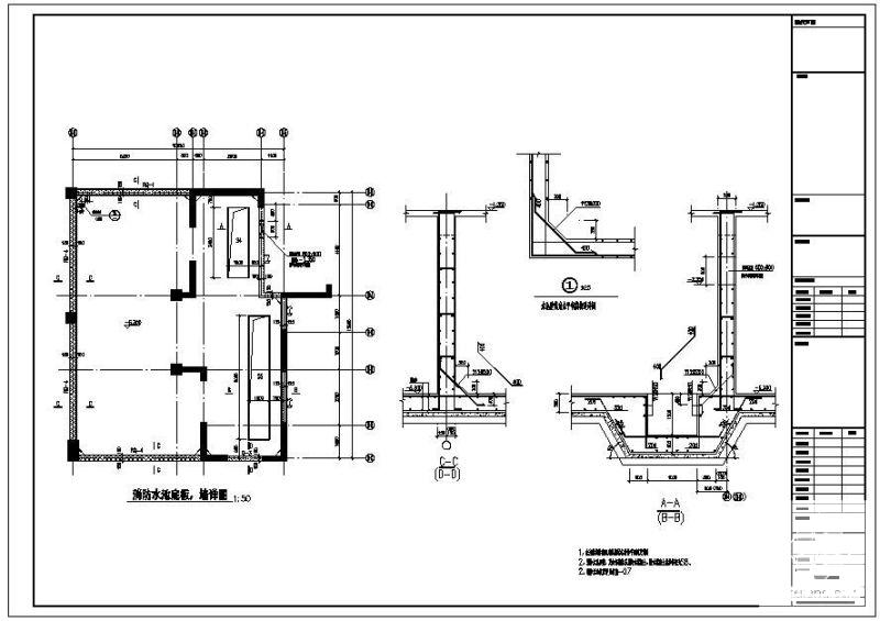
某消防水池
节点详图
共1张图纸。
以下是附件的其中一部分截图,共1张,您也可以
搜索
更多您想要的资源
第 1 张图
以上是部分截图,请下载附件后查看完整高清内容
发布时间:2024-01-02
评论次数:0
浏览次数:0
文件大小:0.09 MB
收藏次数:0
文件名称:
附件-996055079876688797.rar
下载信息
加入收藏
赚取积分
立即下载
对不起,系统繁忙,请稍后再试,或联系管理员
对不起,您的积分余额不足,请
充值积分
恭喜购买成功!请
下载文件
相关下载
小水池、景墙节点详大样图设计
消防水池节点构造CAD详图纸
大厦生活、消防水池节点构造详图纸cad
大厦消防水池节点构造详图纸cad
消防水池节点构造详图纸cad
消防水池结构节点构造详图纸cad
消防水池节点构造详图纸cad
住宅入口景观跌水水池节点详大样图设计
特色水景围墙及溢水池节点构造CAD详大样图
消防水池侧壁计算
特色入口跌水池做法详大样图设计
特色L形叠水池详大样图设计
现代风格水池做法详大样图设计
喷水池景墙CAD详大样图
圆形喷泉水池施工CAD详大样图
消防水池结构大样图纸
下消防水池结构CAD图纸
室外消防水池CAD图纸
消防水池结构CAD图纸
消防水池防水构造大样
全部评论
评论
网友评论仅友表达个人看法,并不表明本站同意其观点,不得发布违反法律法规的内容!
下载排行
地下上消防水池结构图纸(地下消防水池设计说明).dwg
消防水池结构施工节点构造详图纸平面图及配筋图
下室外墙,消防水池墙及集水井节点配筋CAD图纸
医院方案地下消防水池节点CAD详图纸
复合式衬砌隧道消防水池总体布置节点CAD详图纸设计
复合式衬砌隧道消防水池附件节点CAD详图纸设计
复合式衬砌隧道消防水池顶板配筋节点CAD详图纸设计
复合式衬砌隧道消防水池底板配筋节点CAD详图纸设计
双线分离式隧道消防水池位置平面节点CAD详图纸设计
【]医院方案地下消防水池节点CAD详图纸
下载推荐
消防水池结构施工节点构造CAD详图纸.dwg
消防水池及电梯基坑节点构造详图纸cad
水池防水节点合集
水池防水节点合集
结构节点构造详施工图纸
型钢节点详大样图2018
柱脚节点详大样图
50方钢筋砼蓄水池设计CAD详施工图纸
消防水池、泵池结构施工图纸
消防水池结构设计图纸
网站首页
|
信息产业部备案/许可证编号:苏ICP备2021052619号-1
苏公网安备:32041102001778号
本站所有内容均由网友自主分享,仅供学习和参考,如有侵权内容或者违法行为,请及时联系站长删除。