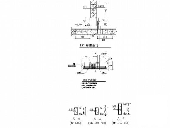
单层混合结构工业辅助用房结构CAD施工图纸(6度抗震)(后浇带做法)
- 发布时间:2023-01-18
- 评论次数:0
- 浏览次数:0
- 文件大小:0.35 MB
- 收藏次数:0
- 
								文件名称: 附件-995879560078568858767.zip 附件-995879560078568858767.zip
								相关下载
							
						- 施工后浇带做法节点构造详图纸
- 工业设备CAD基础图纸(锅炉、管廊、钢框架、桁架)(后浇带做法)
- 后浇带详细做法节点构造详图纸
- 后浇带通过梁做法CAD.dwg
- 带辅助用房钢结构厂房图纸.
- 后浇带做法详细设计CAD图纸(结构施工方案图)
- 保障性住房桩筏基础结构CAD图纸(后浇带做法)
- 楼板、梁、墙、基础后浇带做法详细设计CAD图纸(钢结构节点)
- 后浇加强带设计图纸.
- (墙、板)施工后浇带做法节点构造设计详图纸
- 浅谈混凝土结构后浇带设计与施工
- 现浇混凝土结构中后浇带施工
- 超长混凝土结构后浇带的设计与施工
- 现浇混凝土结构后浇带的施工
- 现浇混凝土结构中后浇带施工
- 混凝土墙后浇带详细做法节点构造详图纸
- 底板及外墙后浇带做法节点构造详细设计CAD图纸
- 后浇带详细做法节点构造详细设计CAD图纸(基础底板)
- 混凝土膨胀加强带后浇带(节点)
- 现浇混凝土结构后浇带CAD大样图纸
全部评论
						
							评论网友评论仅友表达个人看法,并不表明本站同意其观点,不得发布违反法律法规的内容!
						
						
 
	              	 
	              	 
	              	