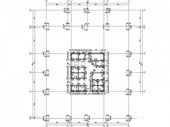
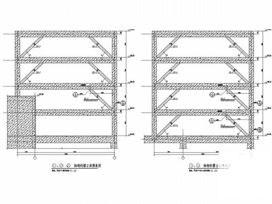
39层框架核心筒结构超高层办公楼结构CAD施工图纸
- 发布时间:2023-01-17
- 评论次数:0
- 浏览次数:0
- 文件大小:5.91 MB
- 收藏次数:0
- 
								文件名称: 附件-995876558989098508855.rar 附件-995876558989098508855.rar
								相关下载
							
						- 超高层框架核心筒结构塔式办公楼建筑施工CAD图纸
- 2020框架核心筒结构超高层塔楼结构施工图纸cad
- 超高层框架——核心筒结构施工技术.pdf
- 2019框架核心筒结构超高层商业楼结构施工图纸cad
- 31层框架核心筒结构酒店商务办公楼结构CAD施工图纸(单栋超高层).dwg
- 46层框架核心筒结构办公楼结构施工大样图
- 220m超高层框架核心筒建筑结构CAD施工图纸
- 2021框架核心筒结构超高层办公楼结施施工图纸205Pcad
- 23层框架核心筒结构办公楼结构设计总说明
- 多层框架核心筒办公楼结构施工图纸2022+87Pcad
- 框架核心筒办公楼结构CAD施工图纸(39层)
- 39层框架核心筒办公楼结构CAD施工图纸
- 高宝金融大厦型钢混凝土框架一核心筒结构设计(超高层办公楼)
- 设置核心筒外剪力墙的超高层结构设计
- 框架—核心筒公寓部分结构施工图纸.
- 框架核心筒办公楼结构设计说明
- 框架核心筒办公楼结构设计说明.dwg
- 超高层钢梁砼核心筒结构工程钢结构节点施工(现浇钢筋混凝土)
- 18层双塔网状钢框架核心筒结构办公楼结构施工图纸
- 18层双塔网状钢框架核心筒结构办公楼结构CAD施工图纸
全部评论
						
							评论网友评论仅友表达个人看法,并不表明本站同意其观点,不得发布违反法律法规的内容!
						
						
 
	              	 
	              	 
	              	 
	              	 
	              	