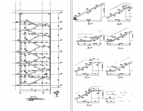
5层框架结构附属中学宿舍楼结构图纸)(柱下独立基础)
- 发布时间:2023-01-14
- 评论次数:0
- 浏览次数:0
- 文件大小:2.42 MB
- 收藏次数:0
- 
								文件名称: 附件-995876557880986058888.rar 附件-995876557880986058888.rar
								相关下载
							
						- 5层框架结构中学宿舍楼(三栋)(柱下独立基础)
- 4层框架结构宿舍楼结构设计图纸(柱下独立基础)
- 6层框架结构安置房结构CAD施工图纸(柱下独立基础)
- 6层框架结构酒店结构施工图纸(柱下独立基础)
- 框架结构厂房结构CAD施工大样图(柱下独立基础)
- 框架结构办公楼结构施工(3层柱下独立基础)
- 2层框架结构售楼处CAD施工图纸(柱下独立基础)
- 柱下独立基础节点详细设计CAD图纸(框架结构)
- 5层框架结构综合办公楼设计(柱下独立基础)
- 3层砖混结构宿舍楼结构CAD施工图纸(6度抗震)(柱下独立基础)
- 柱下独立基础节点构造详细设计CAD图纸
- 柱下独立基础节点构造详细设计CAD图纸
- 柱下独立基础节点详图纸cad
- 柱下独立基础构造详图纸cad
- CAD柱下独立基础课程设计
- 4层钢混框架结构综合楼结构施工图纸(独立基础柱下条形基础).
- 地下1层地上6层框架宿舍楼结构CAD施工图纸(柱下独立基础)
- 4层异形柱框架结构欧式别墅CAD施工图纸(柱下独立基础)
- 4层框架结构办公楼结构图纸(建筑图纸)(柱下独立基础)
- 框架结构厂房结构CAD施工图纸(柱下独立基础)(平面布置图)
全部评论
						
							评论网友评论仅友表达个人看法,并不表明本站同意其观点,不得发布违反法律法规的内容!
						
						
 
	              	 
	              	 
	              	 
	              	 
	              	