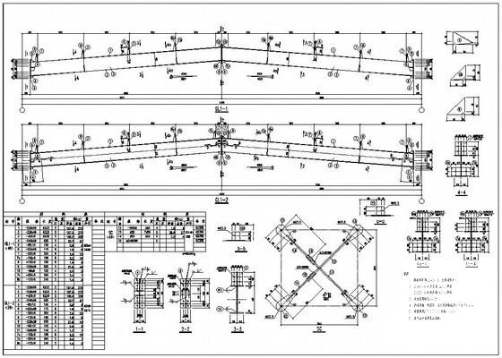
带吊车跨度13m门式刚架厂房结构设计CAD图纸(平面布置图)
- 发布时间:2023-01-09
- 评论次数:0
- 浏览次数:0
- 文件大小:1.6 MB
- 收藏次数:0
-
文件名称:
附件-995878886778008795990.rar
相关下载
- 多层门式刚架带吊车厂房结构设计图纸(平面布置图)
- 带吊车跨度24米单层门式刚架厂房结构设计图纸(平面布置图)
- 带吊车跨度22.5m单层门式刚架厂房结构设计图纸(屋面檩条布置)
- 单层带吊车钢结构厂房结构CAD施工图纸(门式刚架)(平面布置图)
- 带吊车24米门式刚架厂房结构CAD施工图纸(平面布置图)
- 带吊车跨度15米两层门式刚架厂房结构CAD施工图纸(平面布置图)
- 门式刚架带吊车厂房结构设计说明
- 门式刚架带吊车厂房结构设计说明.dwg
- 带吊车跨度24m单层门式刚架厂房结构设计CAD图纸(基础平面图)
- 跨度18米单层门式刚架厂房结构设计CAD图纸(平面布置图)
- 41米跨带吊车门式刚架厂房结构设计图纸(平面布置图)
- 带吊车门式刚架厂房结构设计图纸(基础平面图)
- 局部3层门式刚架厂房结构CAD施工图纸(带气楼、吊车梁)
- 门式刚架钢结构厂房结构CAD施工图纸(带吊车)
- 钢结构厂房结构CAD施工图纸(独立基础带吊车)(轻型门式刚架)
- 带吊车钢结构车间结构CAD施工图纸(门式刚架)(平面布置图)
- 门式刚架带吊车厂房墙梁联结节点
- 9米跨带吊车单层门式刚架厂房结构图纸(结构设计总说明)(平面布置图)
- 跨度21米单层门式刚架工业厂房结构竣工图纸(平面布置图)
- 浅谈带吊车轻钢门式刚架结构设计.pdf
全部评论
评论网友评论仅友表达个人看法,并不表明本站同意其观点,不得发布违反法律法规的内容!
