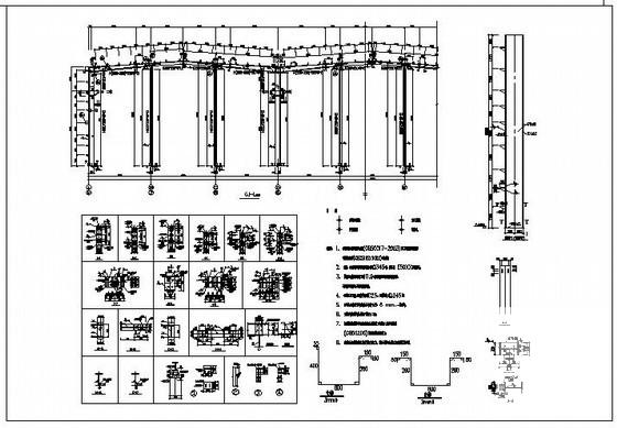
门式刚架厂房结构设计方案图纸(平面布置图)
- 发布时间:2023-01-04
- 评论次数:0
- 浏览次数:0
- 文件大小:1.59 MB
- 收藏次数:0
- 
								文件名称: 附件-995878898689675505055.zip 附件-995878898689675505055.zip
								相关下载
							
						- 门式刚架厂房结构设计方案图纸(平面布置图)
- 门式刚架厂房结构设计方案图纸(系统布置图)
- 门式刚架厂房部分结构设计方案施工图纸(平面布置图)
- 门式刚架厂房结构设计方案CAD图纸(基础平面布置)
- 门式刚架轻钢结构厂房
- 60mX28m门式刚架结构厂房结构CAD施工图纸(平面布置图)
- 两层门式刚架结构厂房结构CAD施工图纸(桩基础)(平面布置图)
- 门式刚架钢结构异形厂房结构CAD施工图纸(平面布置图)
- 单层带吊车钢结构厂房结构CAD施工图纸(门式刚架)(平面布置图)
- 单层门式刚架轻钢结构厂房结构CAD施工图纸(天然地基)(平面布置图)
- 两层门式刚架结构厂房结构CAD施工图纸(平面布置图)
- 3层钢混框架结构楼+门式刚架结构厂房结施平面布置图
- 单层门式刚架钢结构厂房结构设计方案CAD图纸
- 4层门式刚架轻型厂房
- 单层门式刚架结构体系厂房结构CAD图纸
- 单层门式刚架结构油田厂房结构CAD图纸
- 门式刚架结构厂房结构CAD施工图纸
- 单层门式刚架厂房结构设计CAD图纸(7度抗震)(平面布置图)
- 新建门式刚架厂房球形气楼建筑结构设计图纸(平面布置图)
- 多层门式刚架带吊车厂房结构设计图纸(平面布置图)
全部评论
						
							评论网友评论仅友表达个人看法,并不表明本站同意其观点,不得发布违反法律法规的内容!
						
						
 
	              	 
	              	 
	              	