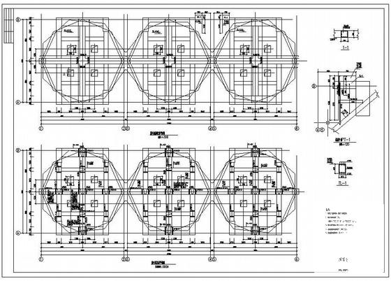
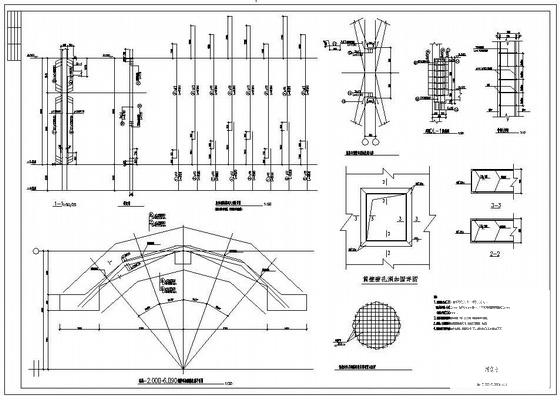
直径10米钢筋砼筒仓全套施工图纸
- 发布时间:2021-11-30
- 评论次数:0
- 浏览次数:0
- 文件大小:0.52 MB
- 收藏次数:0
- 
								文件名称: 附件-995878587099958768797.rar 附件-995878587099958768797.rar
								施工图全套图纸下载
							
						- 大直径筒仓仓顶结构施工技术.pdf
- 直径12米钢筋混凝土圆筒仓结构CAD施工图纸(平面布置图)
- 直径8.5米钢板筒仓结构设计施工图纸(条形基础)
- 选煤厂筒仓施工组织设计(直径22m滑模施工)
- 直径8.5米钢板筒仓结构设计CAD施工图纸
- 1.5米直径钻孔灌注桩钢筋CAD图纸
- 钢筋砼圆管涵斜圆管钢筋数量表
- 钢骨钢筋砼梁柱节点构造2018
- 浅谈钢筋砼结构施工监理.pdf
- 筒仓节点详图纸
- 抄纸车间成浆塔结构大样图
- 中西医地下室纸基础图纸
- 3层钢筋砼结构螺旋楼梯结构详图纸
- 桥梁现浇钢筋砼防撞护栏专项施工方案
- 钢筋砼结构施工中裂缝的预防.pdf
- 钢筋砼圆管涵通用图纸设计18张.dwg
- 高大钢筋砼圆柱支模创新.pdf
- 钢筋砼剪力墙节点构造详图纸cad
- 钢筋混凝土筒仓结构设计施工图纸(31张)
- 钢筋混凝土结构18米筒仓结构施工图纸,共18张
全部评论
						
							评论网友评论仅友表达个人看法,并不表明本站同意其观点,不得发布违反法律法规的内容!
						
						
 
	              	 
	              	 
	              	