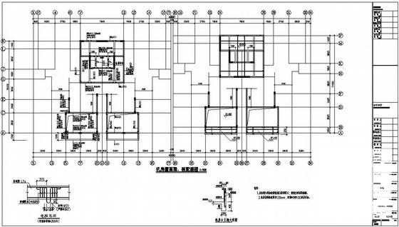
28层剪力墙结构住宅楼结构设计CAD施工图纸
- 发布时间:2023-01-09
- 评论次数:0
- 浏览次数:0
- 文件大小:1.08 MB
- 收藏次数:0
-
文件名称:
附件-995877076987785595970.rar
相关下载
- 14层剪力墙结构住宅楼结构设计施工图纸
- 11层剪力墙结构住宅楼结构设计施工图纸
- 剪力墙结构12层住宅楼结构设计施工图纸
- 18层剪力墙结构住宅楼结构设计施工图纸
- 高层剪力墙结构住宅楼结构设计施工图纸
- 多层框架剪力墙结构住宅楼结构设计施工图纸
- 33层剪力墙结构住宅楼结构设计施工图纸
- 27层剪力墙结构住宅楼结构设计施工图纸
- 18层剪力墙结构住宅楼结构设计施工图纸
- 44层剪力墙结构住宅楼结构设计施工图纸
- 16层剪力墙结构住宅楼结构设计施工图纸
- 高层剪力墙结构住宅楼结构设计CAD施工图纸
- 12层框架剪力墙住宅楼结构设计施工图纸
- 28层剪力墙住宅楼结构设计施工图纸
- 11层剪力墙住宅楼结构设计施工图纸
- 28层剪力墙住宅楼结构设计施工图纸
- 高层剪力墙住宅楼结构设计施工图纸
- 18层剪力墙住宅楼结构设计施工图纸
- 33层人防剪力墙住宅楼结构设计施工图纸
- 18层剪力墙住宅楼结构设计CAD施工图纸
全部评论
评论网友评论仅友表达个人看法,并不表明本站同意其观点,不得发布违反法律法规的内容!
