4层酒店给排水CAD施工图纸

  • 附件设计说明:有
  • 建筑类别:宾馆, 酒店
  • 建筑高度类型:多层建筑
  • 建筑地上层数:4层
  • 建筑地下层数:1层
  • 图纸设计深度:施工图
  • 地下室用途:车库
  • 生活供水设计:生活给水系统
  • 生产供水设计:热水系统
  • 排水设计:污水系统, 废水系统
  • 消防设计:雨淋系统
  • 供水方式:市政供水
  • 排水技术:重力排水
  • 项目所在地:上海

附件详情

  • 设计及施工说明
  • 地下一层给排水平面图
  • 一层给排水平面图
  • 二层给排水平面图
  • 三~四层给排水平面图
  • 热水系统图
  • 冷水系统图
  • 污、废水、客房通风及客房给排水大样图

附件详情

该资料为上海某多层酒店给排水施工图。该项目地上一共4层,地下1层。设计内容:生活给水系统由屋顶水箱供给,热水系统在屋顶新设置中央热水机组,增设热水箱上供下回,管网采用机械循环方式。


热水系统图

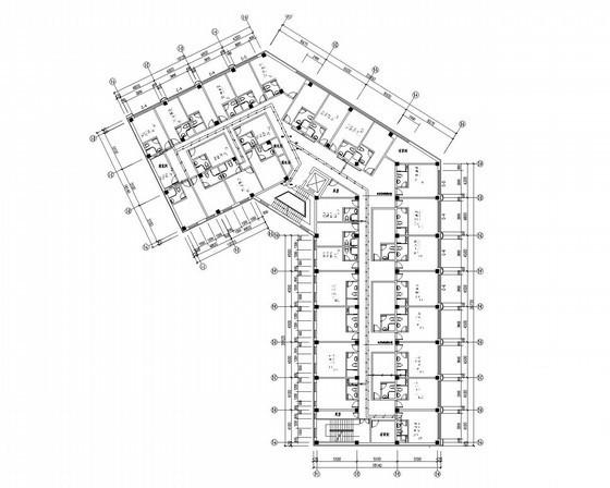
三~四层给排水平面

冷水系统图

以下是附件的其中一部分截图,共4张,您也可以 搜索 更多您想要的资源
  • 4层酒店给排水CAD施工图纸 - 1
    第 1 张图
  • 4层酒店给排水CAD施工图纸 - 2
    第 2 张图
  • 4层酒店给排水CAD施工图纸 - 3
    第 3 张图
  • 4层酒店给排水CAD施工图纸 - 4
    第 4 张图
以上是部分截图,请下载附件后查看完整高清内容
网站首页  | 
本站所有内容均由网友自主分享,仅供学习和参考,如有侵权内容或者违法行为,请及时联系站长删除。