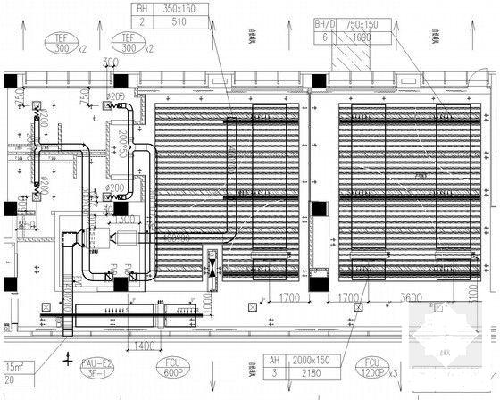
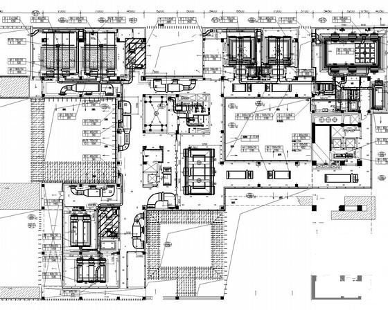
10层大型汽车城及办公楼空调通风防排烟系统设计CAD施工图纸(消防系统设计)
- 发布时间:2022-12-30
- 评论次数:0
- 浏览次数:0
- 文件大小:3.73 MB
- 收藏次数:0
-
文件名称:
附件-995858877096885685598.rar
相关下载
- 10层大型汽车城及办公楼空调通风防排烟系统设计施工图纸
- 30810平米大型展馆空调通风及防排烟系统设计施工图纸
- 5层大型仓库空调通风及防排烟系统设计施工图纸
- 大型展馆空调通风及防排烟系统设计施工图纸
- 大型仓库空调通风及防排烟系统设计CAD施工图纸
- 大型人防工程空调通风及防排烟系统设计施工大样图
- 多层行政办公楼空调通风及防排烟系统设计施工图纸
- 高层办公楼通风空调及防排烟系统设计施工图纸
- 高层办公楼空调通风及防排烟系统设计施工图纸
- 多层实验办公楼空调通风及防排烟系统设计施工图纸
- 高层商业办公楼空调通风及防排烟系统设计施工图纸
- 5层办公楼空调通风及防排烟系统设计施工图纸
- 商业办公楼空调通风及防排烟系统设计CAD施工图纸
- 4层大型工业厂房空调通风及防排烟系统设计CAD施工图纸(洁净空调)
- 4层大型工业厂房空调通风及防排烟系统设计CAD施工图纸(洁净空调)
- 11层大型商业广场空调通风及防排烟系统设计CAD施工图纸(采暖设计)
- 4层大型体育中心空调通风及防排烟系统设计CAD施工图纸(采暖设计)
- 3层大型体育中心空调通风及防排烟系统设计CAD施工图纸(大院设计)
- 大型高层商务酒店空调通风及防排烟系统设计施工CAD图纸(大院设计)
- 3层大型体育中心空调通风及防排烟系统设计CAD施工图纸(大院设计)
全部评论
评论网友评论仅友表达个人看法,并不表明本站同意其观点,不得发布违反法律法规的内容!
