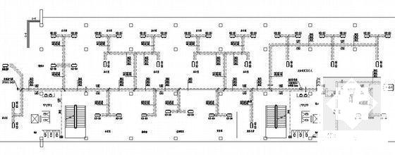
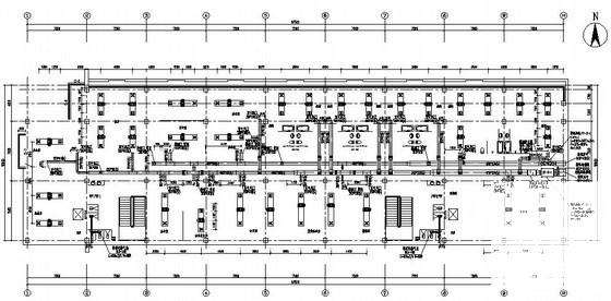
3层小型办公楼空调设计CAD施工图纸
- 发布时间:2022-12-30
- 评论次数:0
- 浏览次数:0
- 文件大小:4.1 MB
- 收藏次数:0
-
文件名称:
附件-995858760859877987697.rar
相关下载
- 小型办公楼空调通风系统设计CAD施工图纸(集中空调)
- 3层小型办公楼VRV空调系统设计施工CAD图纸(空调配电)
- 小型办公楼空调新风系统设计CAD施工图纸(建筑设计)
- 小型办公楼空调新风系统设计施工CAD图纸(建筑设计)
- 3层小型办公楼空调设计施工图纸
- 3层小型办公楼空调及通风系统设计施工图纸
- 5层小型商业办公楼空调通风系统设计施工图纸
- 小型医院办公楼中央空调系统竣工图纸(设计施工说明)
- 5层小型商业办公楼空调通风系统设计CAD施工图纸
- 综合小型办公楼空调系统设计CAD施工图纸(风冷热泵机组)
- 3层小型办公楼空调设计CAD施工图纸(系统原理图)
- 5层小型办公楼空调设计CAD施工图纸
- 600平方米小型办公楼空调设计施工图纸.
- 小型行政办公楼空调系统设计CAD施工图纸(机房系统).dwg
- 4层小型科技办公楼空调设计CAD施工图纸.dwg
- 小型厂房空调设计CAD图纸
- 小型多层办公楼空调通风系统初步设计CAD图纸
- 小型办公楼风冷热泵空调设计图纸.dwg
- 4层小型商场空调系统设计施工图纸
- 3层小型商场空调通风设计施工图纸
全部评论
评论网友评论仅友表达个人看法,并不表明本站同意其观点,不得发布违反法律法规的内容!
