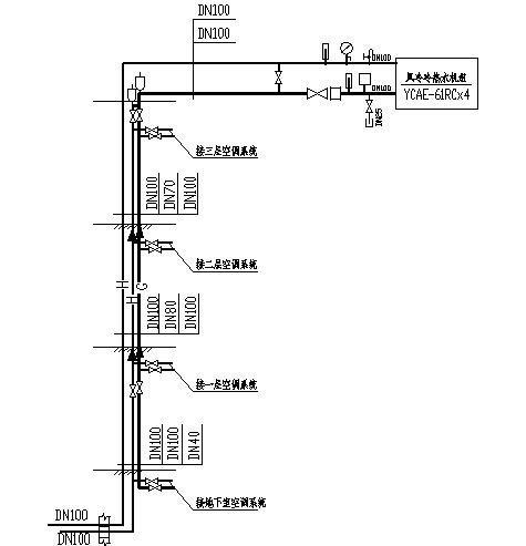
3层小型办公楼空调设计CAD施工图纸(系统原理图)
- 发布时间:2022-12-30
- 评论次数:0
- 浏览次数:0
- 文件大小:0.54 MB
- 收藏次数:0
- 
								文件名称: 附件-995858765599765595875.rar 附件-995858765599765595875.rar
								相关下载
							
						- 小型办公楼空调通风系统设计CAD施工图纸(集中空调)
- 3层小型办公楼VRV空调系统设计施工CAD图纸(空调配电)
- 小型行政办公楼空调系统设计CAD施工图纸(机房系统).dwg
- 小型办公楼空调新风系统设计CAD施工图纸(建筑设计)
- 小型办公楼空调新风系统设计施工CAD图纸(建筑设计)
- 3层小型办公楼空调及通风系统设计施工图纸
- 5层小型商业办公楼空调通风系统设计施工图纸
- 小型医院办公楼中央空调系统竣工图纸(设计施工说明)
- 5层小型商业办公楼空调通风系统设计CAD施工图纸
- 综合小型办公楼空调系统设计CAD施工图纸(风冷热泵机组)
- 小型冷库制冷原理图纸
- 4层小型商场空调系统设计施工图纸
- 小型多层办公楼空调通风系统初步设计CAD图纸
- 小型办公楼空调通风系统设计CAD施工图纸(KMR变频多联系统).dwg
- 厂中央空调CAD图纸(系统原理图)
- 小型别墅VRV空调系统设计图纸.dwg
- 5层小型医院办公楼中央空调系统竣工CAD图纸
- 高层办公楼空调设计施工大样图原理图
- 小型高层医院建筑空调系统设计施工CAD图纸(VRV系统冬季集中供热)
- 20层大型酒店空调通风设计CAD施工图纸(水系统原理图)
全部评论
						
							评论网友评论仅友表达个人看法,并不表明本站同意其观点,不得发布违反法律法规的内容!
						
						
 
	              	 
	              	 
	              	 
	              	