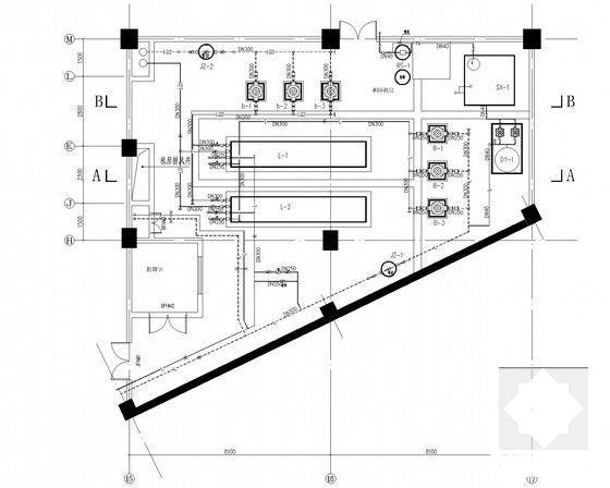
4层商业广场空调通风系统设计CAD施工图纸(制冷机房冷热源系统)
- 发布时间:2022-12-20
- 评论次数:0
- 浏览次数:0
- 文件大小:4.12 MB
- 收藏次数:0
- 
								文件名称: 附件-995858870609677577875.rar 附件-995858870609677577875.rar
								相关下载
							
						- 制冷机房_冷热源系统暖通施工图纸
- 13层大型酒店空调通风系统设计CAD施工图纸(制冷机房)
- 13层大型酒店空调通风系统设计CAD施工图纸(制冷机房)
- 旅馆空调系统制冷机房CAD图纸
- 医院水蓄冷制冷机房设计CAD图纸
- 11层办公楼空调通风及防排烟系统残卷(制冷机房)
- 19层科研办公建筑空调通风及防排烟系统(制冷机房)
- 高层办公楼空调通风及防排烟系统残卷(制冷机房)
- 游泳馆暖通设计cad图纸_冷热源、空调系统、通风系统
- 33层商业建筑空调通风及防排烟系统设计CAD施工图纸(制冷机房设计)
- 6000平米冰蓄冷空调机房工程系统设计施工图纸
- 冰蓄冷空调机房工程系统设计CAD施工方案图纸
- 10层标杆商业建筑空调通风及防排烟系统设计CAD施工图纸(制冷机房)
- 高层五星酒店空调通风防排烟系统(冷热源机房、含计算书).dwg
- 多层文化建筑空调通风系统设计CAD施工大样图(冷热源设计)
- 超高层综合建筑空调通风防排烟系统(制冷机房人防设计)
- 高层酒店空调及通风排烟系统设计CAD施工图纸(冷热源水系统)
- 高层酒店空调及通风排烟系统设计CAD施工图纸(冷热源水系统)
- 13层医院门诊楼空调及通风排烟系统设计施工CAD图纸(冷热源系统多)
- 高层酒店建筑空调通风及防排烟系统设计施工CAD大样图(冷热源系统)
全部评论
						
							评论网友评论仅友表达个人看法,并不表明本站同意其观点,不得发布违反法律法规的内容!
						
						
 
	              	 
	              	 
	              	 
	              	 
	              	