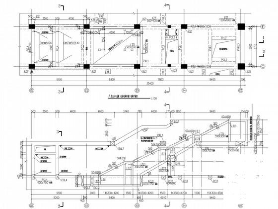
2层三跨箱形框架结构岛式地铁车站结构图纸(85张)
- 发布时间:2022-11-27
- 评论次数:0
- 浏览次数:0
- 文件大小:4.45 MB
- 收藏次数:0
-
文件名称:
附件-995876667586958876979.zip
相关下载
- 地铁车站双柱三跨框架结构施工方案.doc
- 地铁岛式站台车站主体结构施工方案.doc
- 明挖车站主体结构施工方案(岛式车站).doc
- 地铁明挖地下2层岛式车站主体围护结构施工CAD图纸25张(地下连续墙深29.61m)
- 单柱两跨地下两层侧式地铁车站设计CAD大样图(2011)
- 3层大型地铁工程岛式站台车站给排水初步设计图纸(说明书)
- 高架3层岛式交通车站建筑施工CAD图纸
- 地铁车站幕墙屋面立面CAD图纸
- 地铁车站设计CAD图纸(完整)
- 双层单柱双跨钢筋砼框架型地铁车站施工组织设计
- 地铁车站明挖施工步骤
- 地铁车站站房结构施工图纸
- 地铁车站围护结构全套CAD施工图纸
- 地铁车站风亭结构平剖面设计CAD图纸
- 箱形吊车梁结构CAD图纸
- 钢铁厂主轧跨设备基础施工方案(箱形结构)
- 箱形梁与箱形柱的刚性连接节点构造详细设计CAD图纸
- 箱形梁与箱形柱的刚性连接节点构造详细设计CAD图纸
- 矩形箱形截面支撑与矩形箱形梁连接节点构造CAD详图纸
- 四跨3层地铁站框架结构施工图纸2020
全部评论
评论网友评论仅友表达个人看法,并不表明本站同意其观点,不得发布违反法律法规的内容!
