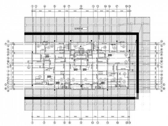
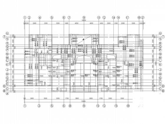
著名房地产公司开发33层住宅楼CAD施工图纸(桩基础)(平面布置图)
- 发布时间:2022-11-27
- 评论次数:0
- 浏览次数:0
- 文件大小:2.36 MB
- 收藏次数:0
- 
								文件名称: 附件-995876755890796786589.zip 附件-995876755890796786589.zip
								相关下载
							
						- 著名房地产公司开发33层住宅CAD施工图纸
- 著名房地产公司高尔夫景观CAD图纸
- 著名房地产公司建筑施工图纸设计指引.
- 住宅楼基础详图平面布置图
- 世界著名房地产公司大楼项目中水施工图纸(国际知名设计师)
- 铁路站地下空间开发弱电施工图纸cad平面布置图
- 旅游开发项目高支模施工方案,平面布置图
- 扩底桩基础cad图和桩位平面布置图,承台平面布置图
- 工程静压沉管灌注桩设计说明及基础平面布置图纸
- 住宅楼钻孔灌注桩基础设计CAD图纸(抗压桩抗拔桩)
- 35万平米世界著名房地产公司大楼项目中水CAD施工大样图(国际知名设计师)
- 基础地基处理图纸_基坑开挖设计说明和桩位布置图、混凝土桩身图
- 小学食堂基础详图纸平面布置图
- 别墅基础设计图纸平面布置图
- 别墅基础图纸平面布置图
- 别墅基础详图纸平面布置图
- 城区开发前期配套市政道路工程施工图纸cad平面布置图
- 小区住宅楼桩基础布置图纸.dwg
- 娱乐城cad结构图纸和设计说明,桩详图,桩平面布置图
- 6层桩基础框架结构住宅楼结构CAD施工图纸(平面布置图)
全部评论
						
							评论网友评论仅友表达个人看法,并不表明本站同意其观点,不得发布违反法律法规的内容!
						
						
 
	              	 
	              	 
	              	 
	              	 
	              	