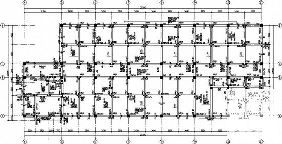
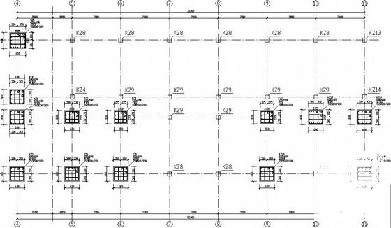
职高实验综合楼框架结构CAD施工图纸
- 发布时间:2022-11-27
- 评论次数:0
- 浏览次数:0
- 文件大小:1.31 MB
- 收藏次数:0
- 
								文件名称: 附件-995876780556558078067.zip 附件-995876780556558078067.zip
								相关下载
							
						- 10层学院工实验综合楼全套结构施工图纸
- 小学5层综合楼建筑施工CAD图纸(实验室平面图)
- 育才实验小学4层综合楼建筑施工CAD图纸
- 高层实验综合楼给排水CAD施工图纸(空调排水、)
- 4层实验小学给排水CAD施工图纸(综合楼食堂操场)
- 中学4层图书实验综合楼强电CAD施工图纸(防雷接地)
- 10层学院工实验综合楼全套结构CAD施工图纸
- 9层框架技术学院实验综合楼结构CAD施工图纸
- 实验行政综合楼采暖设计CAD施工图纸
- 6层实验高中教学综合楼建筑扩初初设图纸
- 6层实验高中教学综合楼建筑扩初CAD图纸
- 框架结构大跨度实验室结构设计施工图纸
- 4层框架结构实验楼结构设计施工图纸
- 9层框架结构供电公司检修实验楼结构施工图纸
- 5层框架结构实验中学教学楼结构接施工图纸
- 地上6层框架结构实验楼结构设计施工图纸
- 5层框架结构中学实验楼结构设计施工图纸
- 地上5层框架结构实验楼结构设计施工图纸
- 3层框架结构实验研发中心结施施工图纸2017
- 5层实验小学框架结构施工方案图纸
全部评论
						
							评论网友评论仅友表达个人看法,并不表明本站同意其观点,不得发布违反法律法规的内容!
						
						
 
	              	 
	              	 
	              	