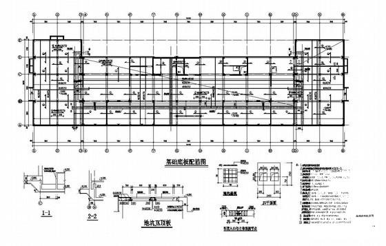
13层框剪办公楼结构设计CAD施工图纸(梁配筋图)
- 发布时间:2022-11-23
- 评论次数:0
- 浏览次数:0
- 文件大小:6.29 MB
- 收藏次数:0
-
文件名称:
附件-995876989975695667878.rar
相关下载
- 城中村改造框剪住宅结构CAD施工图纸(梁配筋图)
- 18层框剪结构商住楼结构施工图梁配筋平面图
- 框剪会所结构CAD施工图纸(6层筏型基础)(梁配筋图)
- 8层异形柱框剪结构住宅楼结构CAD施工图纸(梁板配筋图)
- 框混别墅结构设计cad施工图纸_梁配筋图,板配筋图和柱结构平面图
- 框支梁配筋构造节点详图纸cad
- 框支梁配筋构造节点详图纸cad
- 梁配筋详图纸样图
- 高层框剪结构住宅楼结构设计图纸(梁平法配筋图)
- 21层框筒结构商业建筑结构设计CAD施工图纸(梁配筋图)
- 7层框架办公楼结构CAD施工图纸(梁配筋图)
- 6层框剪结构综合办公楼结构设计CAD图纸(梁平法配筋图)
- 小别墅结构图纸和屋面板配筋图,地梁配筋图,基础配筋图
- 弧形框架结构办公楼结构设计CAD施工图纸(梁配筋图)
- 11层框剪结构酒店结构设计施工图纸(边缘构件配筋)
- 办公楼毕业设计方案(结构CAD图纸)(梁配筋图)
- 21层框剪综合楼结构CAD施工图纸(桩基、独基)(梁平法配筋图)
- 12层框剪结构宿舍楼结构CAD施工图纸(条形基础)(梁平法配筋图)
- 30层框剪结构住宅楼结构CAD施工图纸(梁平法配筋图)
- 30层框剪结构高层住宅楼结构CAD施工图纸(梁平法配筋图)
全部评论
评论网友评论仅友表达个人看法,并不表明本站同意其观点,不得发布违反法律法规的内容!
