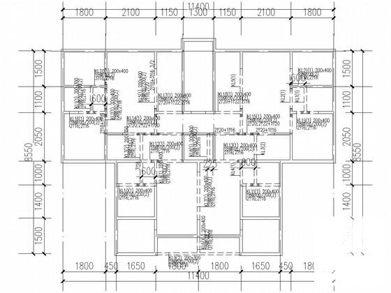
12层框剪结构宿舍楼结构CAD施工图纸(条形基础)(梁平法配筋图)
- 发布时间:2022-09-26
- 评论次数:0
- 浏览次数:0
- 文件大小:5.88 MB
- 收藏次数:0
-
文件名称:
附件-995877079805788896887.rar
相关下载
- 30层框剪结构住宅楼结构CAD施工图纸(梁平法配筋图)
- 30层框剪结构高层住宅楼结构CAD施工图纸(梁平法配筋图)
- 高层框剪结构住宅楼结构设计图纸(梁平法配筋图)
- 21层框剪综合楼结构CAD施工图纸(桩基、独基)(梁平法配筋图)
- 11层框剪带闷顶住宅楼结构CAD施工图纸(梁平法配筋图)
- 6层桩基础底框结构住宅楼结构CAD施工图纸(梁平法配筋图)
- 多层底框抗震墙住宅楼结构CAD施工图纸(桩基础)(梁平法配筋图)
- 小高层带裙楼框剪结构住宅结构CAD施工图纸(筏形基础)(梁平法配筋图)
- 11层桩基础框剪结构住宅楼结构设计CAD施工图纸(梁平法配筋图)
- 框架结构住宅楼结构CAD施工图纸(8层桩基础)(梁平法配筋图)
- 柱下独立基础框架结构住宅楼结构CAD施工图纸(梁平法配筋图)
- 3层框架结构住宅楼结构CAD施工图纸(独立基础)(梁平法配筋图)
- 3层独立基础框架结构教学楼结构CAD施工图纸(梁平法配筋图)
- 5层条形基础砖混结构住宅楼结构CAD施工图纸(6度抗震)(梁平法配筋图)
- 3层条形基础框架结构幼儿园结构设计CAD施工图纸(6度抗震)(梁平法配筋图)
- 14层框剪结构住宅楼结构设计CAD施工图纸(梁平法配筋图)
- 公安局办公楼结构CAD施工图纸(梁平法配筋图)
- 底层框架带阁楼住宅结构CAD施工图纸(梁平法配筋图)
- 地下1层车库框架结构CAD施工图纸(梁平法配筋图)
- 地下商场框架结构体系CAD施工图纸(梁平法配筋图)
全部评论
评论网友评论仅友表达个人看法,并不表明本站同意其观点,不得发布违反法律法规的内容!
