admin
|
退出
|
登录
|
注册
|
0
积分
|
赚取积分
|
VIP领取积分
|
帮助中心
|
首页
【知石网】是一个专业资料分享学习平台,本站提供大量施工技术文档和设计下载。
首页
施工图纸
施工方案
施工组织
施工交底
合同表格
建筑结构
节点详图
毕业设计
平面图纸
景观设计
电气知识
环保知识
您当前位置:
首页
»
其他文档
»
其他资料
»
梁配筋详图纸样图
梁配筋详图纸样图
资料简介
赚取积分
搜索更多资源
附件详情
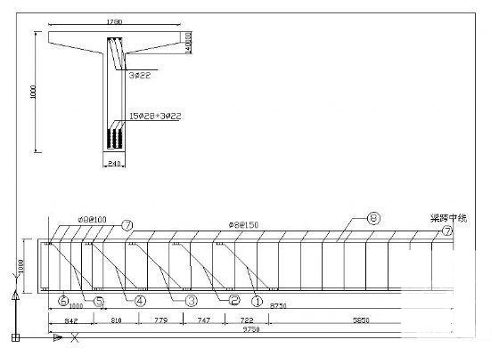
某梁配筋详图
包括:配筋图、样图共1张图纸。
2
以下是附件的其中一部分截图,共2张,您也可以
搜索
更多您想要的资源
第 1 张图
第 2 张图
以上是部分截图,请下载附件后查看完整高清内容
发布时间:2021-12-14
评论次数:0
浏览次数:0
文件大小:0.03 MB
收藏次数:0
文件名称:
附件-996058555657779565.rar
下载信息
加入收藏
赚取积分
立即下载
对不起,系统繁忙,请稍后再试,或联系管理员
对不起,您的积分余额不足,请
充值积分
恭喜购买成功!请
下载文件
相关下载
梁配筋大样详图纸
连梁斜筋配筋构造CAD详图纸
悬臂梁配筋构造详图纸
连梁配筋示意节点构造详图纸
挑梁配筋构造节点CAD详图纸
框支梁配筋构造节点详图纸cad
框支梁配筋构造节点详图纸cad
次梁配筋构造详图纸cad
悬挑梁详图纸及配筋表cad
小别墅结构图纸和屋面板配筋图,地梁配筋图,基础配筋图
弧形廊施工详图纸平面图及剖面,基础梁配筋图
基础梁配筋断面构造图纸
井式梁JSL配筋构造
综合高层梁板配筋.dwg
16层梁配筋图纸.dwg
15层梁配筋图纸.dwg
14层梁配筋图纸.dwg
13层梁配筋图纸.dwg
屋面配筋详图纸
曲桥施工详图纸平面图及剖面图,立面图,梁配筋图
全部评论
评论
网友评论仅友表达个人看法,并不表明本站同意其观点,不得发布违反法律法规的内容!
下载排行
渡槽结构及配筋详图纸平面图
圆形水池做法详图纸配筋图
混凝土楼盖设计节点构造详图纸平面布置图,主梁配筋图
室外消防水泵房结构cad图和梁配筋平面图,楼梯结构详图
框混别墅结构设计cad施工图纸_梁配筋图,板配筋图和柱结构平面图
江浙基坑配筋详图纸
溢洪道配筋图纸CAD详图纸
3层框架结构幼儿园结构施工图梁配筋图
26层公租房-结构墙柱平面图及梁配筋图
人防门坎配筋及门顶墙配筋构造示意节点构造详图纸
下载推荐
组合次梁的配筋构造图纸
折梁、后浇带、孔洞配筋大样
板,梁开洞配筋大样设计CAD图纸
组合次梁的配筋构造CAD图纸
综合楼地梁配筋大样
基坑支护桩及冠梁配筋CAD图纸
地下3层梁配筋图纸.dwg
九至10层梁配筋图纸.dwg
十一、12层梁配筋图纸.dwg
梁配筋大样及平面表示法说明cad
网站首页
|
信息产业部备案/许可证编号:苏ICP备2021052619号-1
苏公网安备:32041102001778号
本站所有内容均由网友自主分享,仅供学习和参考,如有侵权内容或者违法行为,请及时联系站长删除。