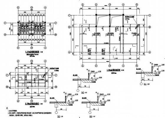
化工厂变、配电室结构CAD施工图纸(桩基础)(建筑设计说明)
- 发布时间:2022-11-23
- 评论次数:0
- 浏览次数:0
- 文件大小:0.93 MB
- 收藏次数:0
- 
								文件名称: 附件-995876988875797508800.rar 附件-995876988875797508800.rar
								相关下载
							
						- 化工厂变、配电室结构CAD施工方案图纸
- 地区箱变基础图纸.
- 化工厂压滤厂房建筑结构施工图纸(建筑,结构设计说明)
- 小学配电室800kVA专变工程电气CAD施工图纸
- 基础设计说明及桩详图纸cad
- 箱变基础大样CAD图纸
- 桩顶变截面节点构造CAD详图纸
- 基础设计说明(椭圆形桩)
- 基础变阶示意独立基础节点构造详图纸
- 化工厂气柜基础CAD详图纸.dwg
- 炼铁风机房配电室施工图纸(建筑设计说明)
- 人工挖孔灌注桩设计说明、独立基础设计说明
- 小学配电室800kVA专变工程电气设计CAD施工图纸
- 箱变基础及接地网安装CAD图纸
- 箱变基础及接地网安装CAD图纸
- 315KVA箱变底座基础CAD图纸
- 10kV箱变基础CAD图纸
- 10KV箱变布置及基础CAD图纸
- 10kV箱变基础设计CAD图纸.dwg
- 基础地基处理图纸_基坑开挖设计说明和桩位布置图、混凝土桩身图
全部评论
						
							评论网友评论仅友表达个人看法,并不表明本站同意其观点,不得发布违反法律法规的内容!
						
						
 
	              	 
	              	 
	              	