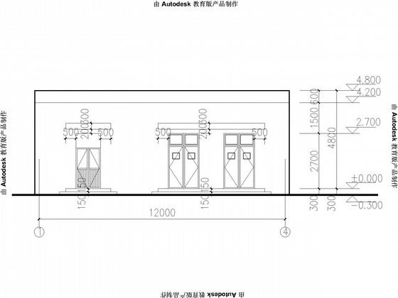
条形基础单层砖混配电室结构CAD施工图纸(建施)
- 发布时间:2022-11-23
- 评论次数:0
- 浏览次数:0
- 文件大小:0.26 MB
- 收藏次数:0
-
文件名称:
附件-995877906888669655987.rar
相关下载
- 2层条形基础砖混别墅结构CAD施工图纸(建施)
- 单层砖混配电室结构CAD施工方案图纸(建施)(民用建筑设计)
- 3层砖混结构条形基础住宅楼结构CAD施工图纸(建施6度抗震)
- 8度区单层砖混结构厂房结构CAD施工图纸(建施)(基础平面图)
- 6度抗震单层门卫砖混结构CAD施工图纸(建施)
- 条形基础单层砖混结构厂房结构CAD施工图纸(夹心屋面板)
- 单层砖混门卫结构施工图纸(条形基础,共2张)
- 条形基础,单层砖混门卫结构CAD施工方案图纸
- 条形基础,单层砖混门卫结构CAD施工图纸.dwg
- 单层砌体结构海草房结构CAD施工图纸(条形基础含建施)(建筑设计说明)
- 酒店宿舍砖混维修改造工程(建施)
- 7层砖混、底部框架结构住宅楼结施(建施)
- 两层条形基础砌体结构别墅结构CAD施工图纸(建施)
- 单层门卫砖混结构CAD施工方案图纸(建施)(民用建筑设计)
- 8度区单层砖混结构CAD施工方案图纸(建施)(民用建筑设计)
- 4层条形基础框架别墅结构CAD施工图纸(建施)
- 3层砖混结构住宅楼结构CAD施工方案图纸(建施)
- 6层砖混结构住宅楼结构CAD施工方案图纸(建施)
- 单层砖混配电室结构设计施工图纸
- 单层砖混配电室结构设计方案CAD施工图纸
全部评论
评论网友评论仅友表达个人看法,并不表明本站同意其观点,不得发布违反法律法规的内容!
