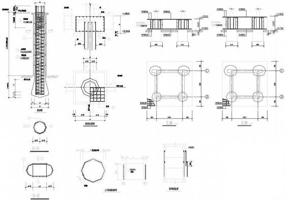
11层桩基础框架结构住宅楼结构CAD施工图纸(6度抗震)
- 发布时间:2022-11-17
- 评论次数:0
- 浏览次数:0
- 文件大小:2.93 MB
- 收藏次数:0
- 
								文件名称: 附件-995876760789770579089.rar 附件-995876760789770579089.rar
								相关下载
							
						- 桩基础框架结构住宅结构CAD施工图纸(6度抗震)(预应力混凝土管桩)
- 11层独立基础框架结构住宅楼结构CAD施工图纸(6度抗震)(人工挖孔灌注桩)
- 上18层框架-抗震墙住宅楼结构CAD施工图纸(桩基础,6度抗震)(预应力管桩)
- 5层框架结构住宅楼结构CAD施工图纸(CFG桩)(柱下独立基础)
- 6层框架结构住宅楼结构CAD施工图纸(人工挖孔桩)(基础设计等级)
- 6层桩基础框架结构住宅楼结构CAD施工图纸(7度抗震)
- 8层框架结构条形基础住宅楼结构CAD施工图纸(7度抗震)
- 7层框架结构条形基础住宅楼结构CAD施工图纸(8度抗震)
- 6层独立基础框架结构住宅楼结构CAD施工图纸(7度抗震)
- 6层桩基础框架结构住宅楼结构CAD施工图纸(6度抗震)
- 两层桩基础框架结构商业住宅楼结构CAD施工图纸(7度抗震)
- 6层桩基础框架结构住宅楼结构CAD施工图纸(6度抗震)
- 3层桩基础框架结构住宅楼结构CAD施工图纸(6度抗震)
- 5层独立基础框架结构住宅楼结构CAD施工图纸(7度抗震)
- 3层独立基础框架结构住宅楼结构CAD施工图纸(6度抗震)
- 3层独立基础框架结构住宅楼结构CAD施工图纸(8度抗震)
- 19层桩基础框架结构住宅楼结构CAD施工图纸(7度抗震)
- 4层桩基础框架结构沿海住宅楼结构CAD施工图纸(7度抗震)
- 单层桩基础框架结构厂房结构CAD施工图纸(8度抗震)
- 3层框架结构独立基础别墅结构CAD施工图纸(6度抗震)
全部评论
						
							评论网友评论仅友表达个人看法,并不表明本站同意其观点,不得发布违反法律法规的内容!
						
						
 
	              	 
	              	 
	              	