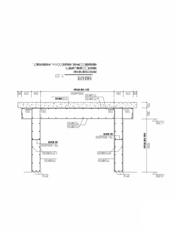
3层桩基础框架结构厂房结构CAD施工图纸(6度抗震)
- 发布时间:2022-11-18
- 评论次数:0
- 浏览次数:0
- 文件大小:1.47 MB
- 收藏次数:0
- 
								文件名称: 附件-995876698055859875558.zip 附件-995876698055859875558.zip
								相关下载
							
						- 单层桩基础框架结构厂房结构CAD施工图纸(8度抗震)
- 桩基础框架结构住宅结构CAD施工图纸(6度抗震)(预应力混凝土管桩)
- 单层桩基础框架结构厂房结构设计CAD施工图纸(8度抗震)
- 单层桩基础钢结构厂房结构CAD施工图纸(7度抗震)
- 大跨度框架结构工业厂房结构CAD施工图纸(独立基础、桩基础)
- 3层框架结构独立基础别墅结构CAD施工图纸(6度抗震)
- 3层独立基础框架结构宿舍结构CAD施工图纸(7度抗震)
- 2层条形基础框架结构超市结构CAD施工图纸(8度抗震)
- 框架结构厂房施工组织设计(钢结构屋面)(基础采用桩基础)
- 11层独立基础框架结构住宅楼结构CAD施工图纸(6度抗震)(人工挖孔灌注桩)
- 单层框架结构厂房结构设计施工图纸(6度抗震)
- 4级框架结构抗震混凝土厂房结构设计CAD施工图纸
- 单层门式刚架厂房结构CAD施工图纸(独立基础)(抗震设防类别)
- 桩基础框架厂房建筑结构CAD施工图纸(6度抗震)
- 3层条形基础框架厂房结构CAD施工图纸(6度抗震)
- 5层独立基础钢框架厂房结构CAD施工图纸(6度抗震)
- 5层桩基础框架厂房结构CAD施工图纸(7度抗震)
- 3层独立基础框架厂房结构CAD施工图纸(6度抗震)
- 4层框架结构实验楼结构CAD施工图纸(7度抗震)(基础采用桩基础)
- 框架结构生产车间施工组织设计(桩承台基础)(预应力混凝土管桩)
全部评论
						
							评论网友评论仅友表达个人看法,并不表明本站同意其观点,不得发布违反法律法规的内容!
						
						
 
	              	 
	              	 
	              	 
	              	 
	              	