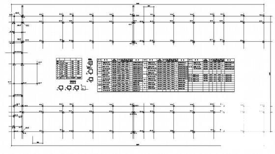
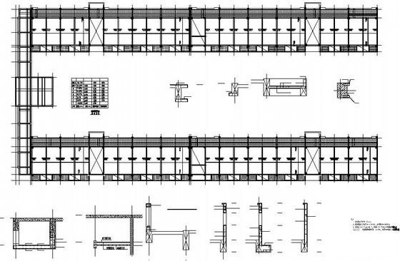
永嘉县6层框架结构学校宿舍结构CAD施工图纸(桩基础)
- 发布时间:2022-11-16
- 评论次数:0
- 浏览次数:0
- 文件大小:0.74 MB
- 收藏次数:0
-
文件名称:
附件-995877077875905088057.rar
相关下载
- 永嘉县6层学校宿舍结构设计CAD施工图纸
- 永嘉县6层学校宿舍结构CAD施工图纸
- 永嘉县3层桩基础框架结构学校食堂结构设计CAD施工图纸(平面布置图)
- 永嘉县3层框架结构学校艺术楼结构设计CAD施工图纸(桩基础)(平面布置图)
- 永嘉县3层学校食堂结构设计CAD施工图纸
- 永嘉县3层学校艺术楼结构设计CAD施工图纸
- 永嘉6层框架结构桩基础学校宿舍结构设计CAD施工图纸
- 框架结构职工宿舍结构CAD施工图纸(5层桩基础)(冲孔灌注桩)
- 4层框架结构宿舍结构设计CAD施工图纸(桩基础)(水泥搅拌桩)
- 中式风格7层学校宿舍楼建筑施工CAD图纸(框架结构、)
- 学校宿舍电气CAD施工图纸
- 7层框架结构宿舍结构设计施工图纸(桩基础)
- 6层桩基础框架结构宿舍结构施工图纸
- 框架结构宿舍楼结构CAD施工图纸(5层独立基础)
- 6层桩基础框架结构宿舍楼结构CAD施工图纸
- 4层框架结构宿舍楼结构CAD施工图纸(独立基础)
- 3层独立基础框架结构宿舍结构CAD施工图纸(7度抗震)
- 3层独立基础框架结构宿舍结构CAD施工图纸
- 6层框架结构中学宿舍结构CAD施工图纸(桩基础)
- 框架结构职工宿舍结构CAD施工图纸(5层桩基础)
全部评论
评论网友评论仅友表达个人看法,并不表明本站同意其观点,不得发布违反法律法规的内容!
