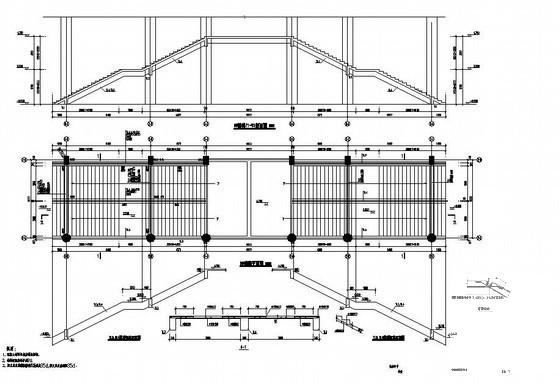
永嘉县3层桩基础框架结构学校食堂结构设计CAD施工图纸(平面布置图)
- 发布时间:2022-10-10
- 评论次数:0
- 浏览次数:0
- 文件大小:2.51 MB
- 收藏次数:0
- 
								文件名称: 附件-995877077987508577568.rar 附件-995877077987508577568.rar
								相关下载
							
						- 永嘉县3层学校食堂结构设计CAD施工图纸
- 永嘉县3层框架结构学校艺术楼结构设计CAD施工图纸(桩基础)(平面布置图)
- 永嘉县6层框架结构学校宿舍结构CAD施工图纸(桩基础)
- 桩基础私人住宅框架结构CAD施工图纸(平面布置图)
- 框架结构地下车库结构施工图基础平面布置图
- 3层独立基础框架结构食堂结构设计图纸(平面布置图)
- 3层框架结构学校食堂结构施工图纸20Pcad平面布置图
- 4层混凝土框架结构厂房CAD施工图纸(灰土基础,条形基础)(平面布置图)
- 扩底桩基础cad图和桩位平面布置图,承台平面布置图
- 工程静压沉管灌注桩设计说明及基础平面布置图纸
- 大型设备基础结构设计图纸cad平面布置图
- 永嘉县3层学校艺术楼结构设计CAD施工图纸
- 永嘉县6层学校宿舍结构设计CAD施工图纸
- 框架结构车库结构设计施工图平面布置图
- 基础地基处理图纸_基坑开挖设计说明和桩位布置图、混凝土桩身图
- 小学食堂基础详图纸平面布置图
- 别墅基础设计图纸平面布置图
- 别墅基础图纸平面布置图
- 别墅基础详图纸平面布置图
- 永嘉县下室结构设计CAD施工大样图
全部评论
						
							评论网友评论仅友表达个人看法,并不表明本站同意其观点,不得发布违反法律法规的内容!
						
						
 
	              	 
	              	 
	              	