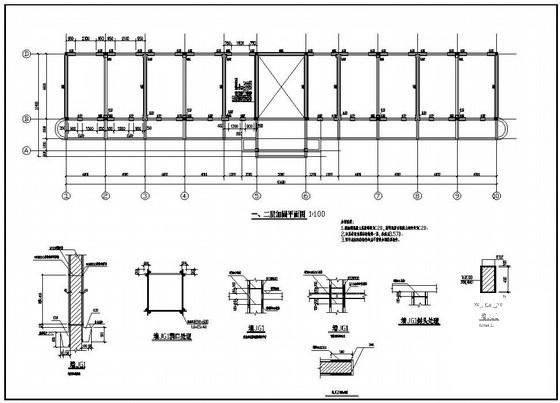
含山县3层砌体结构学校教学楼抗震加固CAD施工图纸
- 发布时间:2022-11-13
- 评论次数:0
- 浏览次数:0
- 文件大小:0.17 MB
- 收藏次数:0
-
文件名称:
附件-995877898969899887807.rar
相关下载
- 4层砌体结构教学楼抗震加固CAD施工图纸(砂浆面层)
- 小学砌体结构厕所抗震加固设计施工图纸
- 两层砌体结构学校教学楼加固结构CAD施工图纸
- 两层砌体结构学校教学楼及其他建筑加固CAD施工图纸
- 老旧房屋砌体结构抗震加固及改造设计
- 小学校舍抗震加固施工图纸
- 5层砌体结构综合教学楼抗震加固CAD施工图纸(钢筋混凝土)
- 8度区两层砌体结构中学教学楼抗震加固建筑施工CAD图纸
- 中学教学楼抗震加固结构设计图纸(砌体结构)(多层建筑)
- 学校抗震加固工程施工方案(地面以下)
- 教学楼结构抗震加固设计总说明
- 学校抗震加固节点构造详图纸cad
- 中学教学楼的抗震鉴定与加固施工
- 砌体结构办公楼抗震加固结构CAD施工图纸
- 5层砌体结构教学楼加固结构CAD施工图纸
- 两层砌体结构教学楼结构CAD施工图纸(8度抗震)
- 8度抗震2层砌体结构教学楼结构CAD施工图纸
- 4层砌体结构初中宿舍抗震加固CAD施工图纸
- 4层砌体结构初中宿舍抗震加固CAD施工图纸
- 6层砌体结构小学教学楼加固CAD施工图纸
全部评论
评论网友评论仅友表达个人看法,并不表明本站同意其观点,不得发布违反法律法规的内容!
