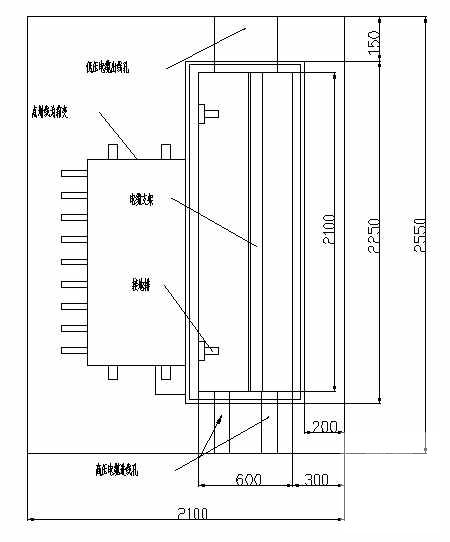
高供高量配电工程箱式变电站电气CAD图纸
- 发布时间:2022-11-12
- 评论次数:0
- 浏览次数:0
- 文件大小:1.32 MB
- 收藏次数:0
- 
								文件名称: 附件-995857588066785680070.rar 附件-995857588066785680070.rar
								相关下载
							
						- 高供高计箱变系统CAD图纸
- 箱式变电站设计CAD图纸(供21页图纸)(一次系统图)
- 箱式变电站低压配电原理CAD图纸
- 箱式变电站电气CAD图纸
- 箱式变电站电气CAD图纸
- 室外箱式变电站
- 箱式变电站电气施工图纸
- 学校电气外网CAD图纸(箱式变电站)(dwg)
- 箱式变电站电气系统CAD图纸
- 箱式变电站电气接线CAD图纸
- 箱式变电站电气设计图纸.
- 箱式变电站电气设计CAD图纸.dwg
- 小区箱式变电站CAD图纸
- 商业广场电气工程施工方案(箱式变电站安装)
- 医药洁净厂房高、低压配电图纸
- 中央广场016高基配电室
- 国内高基配电室增容工程CAD施工方案图纸
- 铁路工程高路堤高边坡加固防护设计CAD详图纸
- 箱式变电站安装布置CAD图纸
- 箱式变电站全套生产CAD图纸
全部评论
						
							评论网友评论仅友表达个人看法,并不表明本站同意其观点,不得发布违反法律法规的内容!
						
						
 
	              	 
	              	 
	              	